Stargard

Obiekt na sprzedaż

Zachodniopomorskie / Stargardzki / Stargard
Nr oferty
382980
Powierzchnia
7 800 m2
Liczba pokoi

Hale magazynowo-produkcyjne

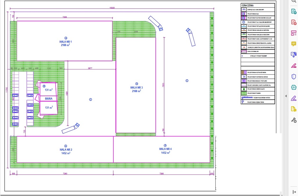
Nieruchomość zlokalizowana w Parku Nowoczesnych Technologii. Składa się z 4 hal o powierzchni 2 x 1450m2 i 2 x 2160m2 i budynku socjalno biurowego o pow. ok. 600m2. Wjazd do hal z poziomu "0", wysokość budynków 6,5m, posadzki bezpyłowe o nośności do 5000 kg/m2, świetliki dachowe w każdym budynku. Budynek biurowy dwukondygnacyjny z możliwością różnej aranżacji, wyposażony we wszystkie instalacje. Utwardzony plac do składowania, a cały teren jest ogrodzony. Powierzchnia działki wynosi blisko 2ha-własność. Przeznaczenie nieruchomości-magazynowe/produkcyjne. Nieruchomość bardzo dobrze wynajęta.
Cena nieruchomości
15 400 000 PLN
Cena za m2
1 974 PLN
Opiekun oferty
ID Nieruchomości
382980
Rynek
wtórny
Powierzchnia
7 800 m2
Powierzchnia działki
18 000 m2
Rok budowy
2014
Czynsz administracyjny
0 PLN
Rodzaj budynku
Magazynowo-biurowy
Stan budynku
Doskonały
Droga dojazdowa
Asfalt
Przeznaczenie (obiekt)
Magazynowe

Opis i cena powyższej oferty nie jest ofertą w rozumieniu Kodeksu Cywilnego i ma jedynie charakter informacyjny, Arka nie ponosi odpowiedzialności za jej kompletność i zgodność ze stanem faktycznym. Dokładamy wszelkich starań aby powyższe informacje były możliwie dokładne, ponieważ jednak pochodzą od osób trzecich, nie zawsze jest możliwa ich weryfikacja.

Kontaktując się z biurem Klient wyraża zgodę na przetwarzanie danych osobowych zgodnie z przepisami ustawy z dnia 29 sierpnia 1997 roku o ochronie danych osobowych / Dz.U.Nr. 133 poz. 883/. Klientowi przysługuje prawo do wglądu do swoich danych osobowych i ich aktualizacji.