Szczecin , Zdroje

Mieszkanie na sprzedaż

Zachodniopomorskie / Szczecin / Zdroje
Nr oferty
439715
Powierzchnia
78 m2
Liczba pokoi
4
Piętro
4 / 4

Zdroje, 4 pokoje, 77m2, 669000 zł,

Na sprzedaż duże, zadbane, słoneczne mieszkanie, zlokalizowane na 4 piętrze W NOWYM BUDYNKU Z CEGŁY, tuż przy Rondzie Ułanów Podolskich.

Mieszkanie jest wewnętrzne, a ponad nim jest jeszcze nieużytkowe poddasze i dach dwuspadowy kryty dachówką ceramiczną BRASS.

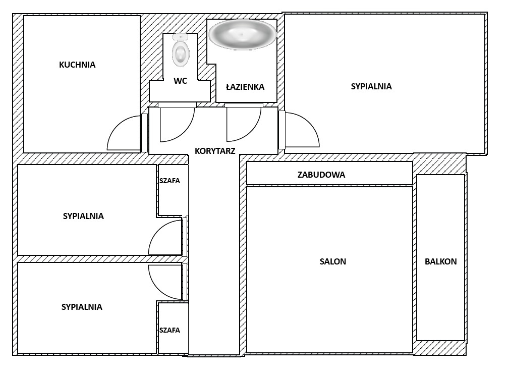
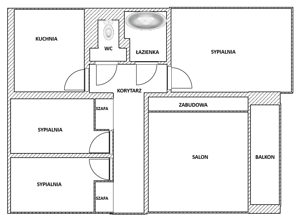
Mieszkanie o powierzchni 77 m2, składa się z :
- salonu (18 m2) z wyjściem na balkon (4,5 m2),
- trzech sypialni (16/8/8 m2.),
- oddzielnej kuchni z oknem (9 m2),
- łazienki z wanną (3 m2),
- oddzielnej toalety 1,7 m2),
- oraz przestronnego korytarza (9 m2).
Wszystkie pokoje rozkładowe.

Na podłogach w pokojach panele, w kuchni i korytarzu terakota. Ściany i sufity gładzone i malowane.

Kuchnia zabudowana jest meblami na wymiar, z wyposażeniem w zabudowie (kuchenka gazowa z piekarnikiem, okap, zmywarka).

Łazienka z wanną oraz osobna toaleta z umywalką - w nowej glazurze i terakocie.

Przedpokój zabudowany dwoma, pojemnymi, szafami firmy Komandor.

W salonie na jednej ze ścian duża, praktyczna zabudowa firmy Komandor, z tego pokoju jest wyjście na balkon od strony południowo - zachodniej.

W mieszkaniu rozprowadzona instalacja internetowa, TV kablowej, telefoniczna. Instalacja elektryczna miedziana. Centralne ogrzewanie i ciepła woda z sieci miejskiej.

Okna PCV, z zamontowanymi wywietrznikami ciśnieniowymi.

Do mieszkania przynależy duża piwnica.

Klatka schodowa czysta, po remoncie. Budynek z cegły, ocieplony, nowy dwuspadowy dach kryty dachówką ceramiczną, wymienione piony wodno - kanalizacyjne.

Czynsz do SM: 1200 PLN (na 4 osoby, w tym dwójka małych dzieci) - w dużej mierze zależy od zużycia wody. Czynsz zawiera zaliczki na centralne ogrzewanie, wodę zimną i ciepłą, śmieci, fundusz remontowy, ryczałt za gaz (tylko do kuchenki).
Coroczne zwroty za centralne ogrzewanie.

Mieszkanie jasne, przestronne i ciepłe.

Lokalizacja w samym centrum Zdrojów, tuż przy Rondzie Ułanów Podolskich.

W pobliżu dostęp do pełnej infrastruktury: szkoły, przedszkola, przychodnie, sklepy wielu branż (LIDL, Biedronka), apteki, banki, inne usługi.

Przepiękny, nieograniczony widok z okien na Puszczę Bukową i Jezioro Dąbie.

Bezproblemowe parkowanie przed budynkiem - duży parking dla mieszkańców tylko tego budynku.

Bliskość przystanków wielu linii autobusowych oraz szybkiego tramwaju zapewnia dogodny dojazd do centrum w kilkanaście minut.


Cena nieruchomości
669 000 PLN
Cena za m2
8 577 PLN
Opiekun oferty
ID Nieruchomości
439715
Rynek
wtórny
Powierzchnia
78 m2
Ilośc pokoi
4
Piętro
4
Ilość pięter
4
Rok budowy
1985
Czynsz administracyjny
1000 PLN
Rodzaj budynku
Niski blok
Stan budynku
Doskonały
Technologia
Cegła
Droga dojazdowa
Asfalt
Stan nieruchomości
Bardzo dobry
Strony świata
Ogrzewanie
CO miejskie
Typ kuchni
Widna
Wyposażenie kuchni
Meble w zabudowie kuchenne, , Piekarnik gazowy, Płyta gazowa, Piekarnik, Zmywarka, Zlewozmywak, Zamrażarka, Okap, Lodówka,
Powierzchnia kuchni
9
Liczba łazienek
1
Powierzchnia łazienki
3
Liczba oddzielnych toalet:
1
Liczba balkonów:
1
Powierzchnia balkonu:
4,5
Powierzchnia piwnicy:
4

Opis i cena powyższej oferty nie jest ofertą w rozumieniu Kodeksu Cywilnego i ma jedynie charakter informacyjny, Arka nie ponosi odpowiedzialności za jej kompletność i zgodność ze stanem faktycznym. Dokładamy wszelkich starań aby powyższe informacje były możliwie dokładne, ponieważ jednak pochodzą od osób trzecich, nie zawsze jest możliwa ich weryfikacja.

Kontaktując się z biurem Klient wyraża zgodę na przetwarzanie danych osobowych zgodnie z przepisami ustawy z dnia 29 sierpnia 1997 roku o ochronie danych osobowych / Dz.U.Nr. 133 poz. 883/. Klientowi przysługuje prawo do wglądu do swoich danych osobowych i ich aktualizacji.