Goleniów

Mieszkanie na sprzedaż

Zachodniopomorskie / Goleniowski / Goleniów
Nr oferty
439684
Powierzchnia
128 m2
Liczba pokoi
5
Piętro
0 / 1

Lokal mieszkalny w zabudowie bliźniaczej

Zapraszamy do zapoznania się z ofertą sprzedaży dwupoziomowego mieszkania, w zabudowie bliźniaczej, na nowopowstającym, kameralnym osiedlu, zlokalizowanym przy ul. Szuwarowej w Goleniowie.

Teren położony na wzgórzu, z widokiem na panoramę miasta.

Przedmiotem sprzedaży jest segment budynku w stanie deweloperskim, wybudowany w technologii tradycyjnej na podstawie projektu "DOM W CYKLAMENACH 5" z niewielkimi modyfikacjami. Projekt charakteryzuje się prostą, zwartą bryłą. Idealny dla rodziny 2+2 lub 2+3.

Położony na działce o pow. 500 m2, z pośrednim dostępem do drogi publicznej poprzez utwardzoną drogę wewnętrzną.

Lokal mieszkalny - parter + poddasze użytkowe, o łącznej pow. użytkowej 127,5 m2 (w tym pow. mieszkalna 102,10 m2 + garaż 25,40 m2), oferowany jest w dwóch wersjach - Z CZTEREMA LUB Z PIĘCIOMA POKOJAMI.

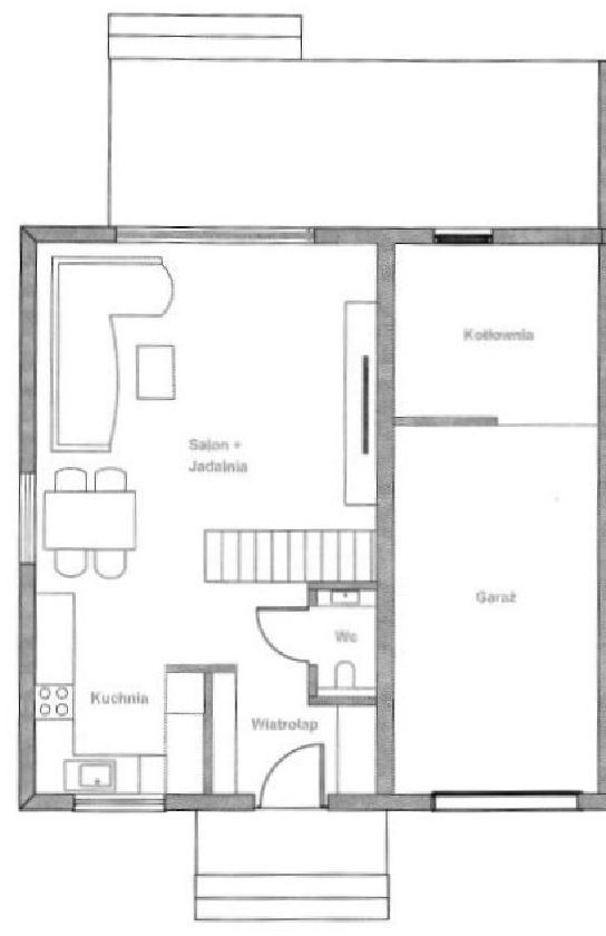
Składa się z następujących pomieszczeń:
PARTER (pow. użytkowa z garażem 66,42 m2):
- wiatrołap 5,87 m²
- salon 26,13 m²
- kuchnia 7,46 m²
- WC 1,56 m²
- garaż 25,40 m²

PODDASZE UŻYTKOWE (pow. użytkowa 61,08 m² - pow. całkowita 66,38 m²):
- sypialnia 1 - 7,78 m² (9,34 m²),
- sypialnia 2 - 14,54 m², (15,6 m²),
- sypialnia 3 - 10,10 m²(10,32 m²),
- łazienka 7,44 m² (9,11 m²),
- garderoba 3,78 m² (4,55 m²)
- przedpokój 17,46 m²

KONSTRUKCJA:
- Ściany konstrukcyjne - bloczki beton komórkowy Solbet 24 cm,
- Strop - płyty żelbetowe, wielokanałowe typu Żerań,
- Schody wewnętrzne - jednobiegowe, żelbetowe, prefabrykowane,
- Ocieplenie ścian zewnętrznych - styropian 18 cm,
- Pokrycie dachu - blacha na rąbek,

STANDARD WYKOŃCZENIA
- drzwi wejściowe Wiśniowski,
- brama garażowa Wiśniowski segmentowa wraz z napędem,
- okna PCV 3-szybowe Wiśniowski,
- instalacja - elektryczna, wodna, kanalizacyjna, RTV,
- system ogrzewania podłogowego w całym domu,
- ocieplenie dachu - wełna mineralna 20 cm lub piana PUR,
- podjazd i ścieżka do domu - kostka betonowa,
- tynk elewacyjny silikatowy, puc,
- taras wykonany z kostki brukowej,

Media - woda z sieci miejskiej, szczelny zbiornik bezodpływowy, prąd.

Pompa ciepła firmy Bosch. Instalacja z możliwością podłączenia paneli fotowoltaicznych.

Teren położony ok. 2,5 km od centrum miasta. Połączenie z ulica Nowogardzką, szybka komunikacja z droga ekspresową S6 Szczecin-Gdańsk.

Cena zawiera podatek VAT - 8%. Kupujący zwolniony z podatku 2% od czynności cywilnoprawnych.

ZAPRASZAMY NA PREZENTACJE i DO SKŁADANIA OFERT ZAKUPU !!!
Cena nieruchomości
680 000 PLN
Cena za m2
5 333 PLN
Opiekun oferty
ID Nieruchomości
439684
Rynek
pierwotny
Powierzchnia
128 m2
Powierzchnia działki
500 m2
Ilośc pokoi
5
Ilość pięter
1
Rok budowy
2025
Czynsz administracyjny
0 PLN
Rodzaj budynku
Część domu
Stan budynku
Stan deweloperski
Technologia
Ytong
Droga dojazdowa
Utwardzona
Stan nieruchomości
Stan deweloperski
Ogrzewanie
Pompa ciepła
Typ kuchni
Otwarta
Powierzchnia kuchni
7,46
Liczba łazienek
1
Powierzchnia łazienki
7,44
Liczba oddzielnych toalet:
1
Liczba tarasów:
1

Opis i cena powyższej oferty nie jest ofertą w rozumieniu Kodeksu Cywilnego i ma jedynie charakter informacyjny, Arka nie ponosi odpowiedzialności za jej kompletność i zgodność ze stanem faktycznym. Dokładamy wszelkich starań aby powyższe informacje były możliwie dokładne, ponieważ jednak pochodzą od osób trzecich, nie zawsze jest możliwa ich weryfikacja.

Kontaktując się z biurem Klient wyraża zgodę na przetwarzanie danych osobowych zgodnie z przepisami ustawy z dnia 29 sierpnia 1997 roku o ochronie danych osobowych / Dz.U.Nr. 133 poz. 883/. Klientowi przysługuje prawo do wglądu do swoich danych osobowych i ich aktualizacji.