Modrzewie

Dom na sprzedaż

Zachodniopomorskie / Goleniowski / Goleniów / Modrzewie
Nr oferty
439431
Powierzchnia
105 m2
Liczba pokoi
4

DOM PARTEROWY w STANIE DEWELOPERSKIM

Zapraszamy do zapoznania się z oferta sprzedaży DOMU JEDNORODZINNEGO w Modrzewiu, 5 km od Goleniowa.

Przedmiotem sprzedaży jest dom jednorodzinny parterowy w stanie deweloperskim, wybudowany w technologii tradycyjnej, charakteryzującej się prostą, zwartą bryłą. Idealny dla rodziny 2+2.

Dom wykończony do stanu deweloperskiego, oddany do użytkowania w 2025 r.

Dom położony na działce o pow. 404 m2 wśród 4 takich samych domów, które są również na sprzedaż.
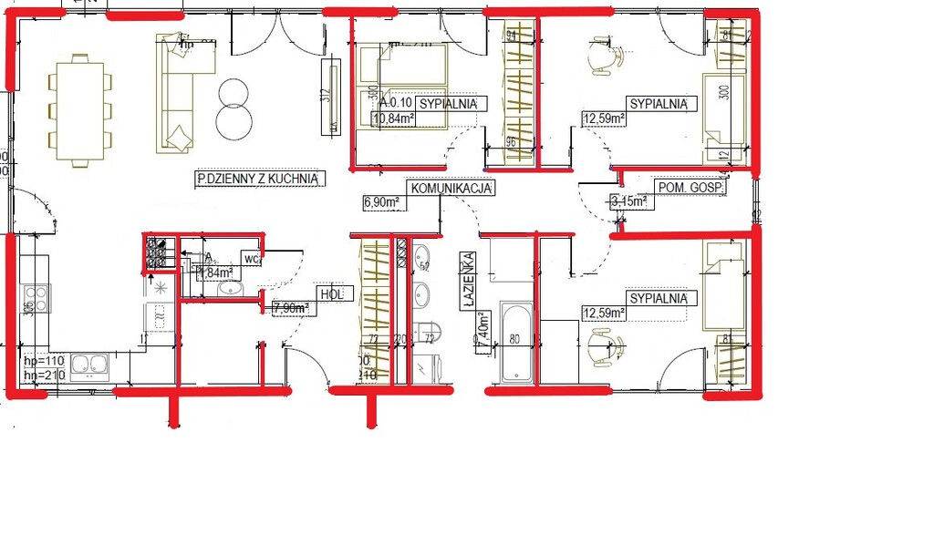
Dom Posiada powierzchnię użytkową 104,80 m2, składa się z następujących pomieszczeń:

- salon z jadalnią i aneksem kuchennym o pow. 39,01 m² z wyjściem na ogród z dwóch stron,
- pokój - 12,59 m²,
- pokój - 12,59 m²,
- pokój - 10,84 m²,
- garderoba - 3,15m² z wyłazem na strych,
- łazienka - 7,40 m²,
- WC - 1,84 m²,
- przedpokój - 6,90 m²,
- holl - 7,90 m²,
- kotłownia 2,58 m².

KONSTRUKCJA:
- Ściany konstrukcyjne - bloczki beton komórkowy,
- Strop - ocieplony wełną mineralną,
- Ocieplenie ścian zewnętrznych - styropian,
- wykonany tynk elewacyjny,
- Pokrycie dachu - dachówka Roben,

STANDARD WYKOŃCZENIA
- drzwi wejściowe KMT,
- okna PCV 3-szybowe w kolorze antracyt,
- instalacja - elektryczna, wodna, kanalizacyjna, światłowód, domofon,
- system ogrzewania podłogowego w całym domu,
- tynki klasyczne - gipsowe

Media:
- woda - miejska,
- kanalizacja - miejska,
- prąd,
- pompa ciepła,
- światłowód.

Pompa ciepła Firmy KASAI z zasobnikiem CWU.

Cały teren wszystkich 5 domów jest ogrodzony, z bramą wjazdową oraz furtką. NA wspólnym terenie znajduję się parking na ok 10 aut do wykorzystania dla przyszłych właścicieli nieruchomości. Zostanie jeszcze wykonane ogrodzenie oddzielające poszczególne budynki.

To doskonały wariant dla 4-5 osobowej rodziny.

Lokalizacja:

Modrzewie oddalone jest 5 km od Goleniowa. Posiada doskonałą komunikację z drogą ekspresową S3 i S6 (Szczecin, Świnoujście, Gdańsk, Koszalin).

Atrakcyjna oferta, spełnij marzenie o budowie domu w bardzo dobrej lokalizacji !

Koszty związane z nabyciem nieruchomości:
- opłaty u notariusza - taksa notarialna, opłaty sądowe, opłata za wypisy, PCC (możliwość zwolnienia z podatku)
- wynagrodzenie biura nieruchomości za usługę pośrednictwa w zakupie.

ZAPRASZAMY NA PREZENTACJE i DO SKŁADANIA OFERT ZAKUPU !!!
Cena nieruchomości
650 000 PLN
Cena za m2
6 202 PLN
Opiekun oferty
ID Nieruchomości
439431
Rynek
pierwotny
Powierzchnia
105 m2
Powierzchnia działki
404 m2
Ilośc pokoi
4
Rok budowy
2025
Czynsz administracyjny
0 PLN
Stan budynku
Stan deweloperski
Technologia
Bloczki
Typ domu
Wolnostojący
Droga dojazdowa
Asfalt
Kształt działki
Prostokąt
Szrokość
19 m2
Długość
21.5 m2
Stan nieruchomości
Stan deweloperski
Ogrzewanie
Pompa ciepła
Typ kuchni
Aneks
Liczba łazienek
1
Liczba oddzielnych toalet:
1

Opis i cena powyższej oferty nie jest ofertą w rozumieniu Kodeksu Cywilnego i ma jedynie charakter informacyjny, Arka nie ponosi odpowiedzialności za jej kompletność i zgodność ze stanem faktycznym. Dokładamy wszelkich starań aby powyższe informacje były możliwie dokładne, ponieważ jednak pochodzą od osób trzecich, nie zawsze jest możliwa ich weryfikacja.

Kontaktując się z biurem Klient wyraża zgodę na przetwarzanie danych osobowych zgodnie z przepisami ustawy z dnia 29 sierpnia 1997 roku o ochronie danych osobowych / Dz.U.Nr. 133 poz. 883/. Klientowi przysługuje prawo do wglądu do swoich danych osobowych i ich aktualizacji.