Dolice

Mieszkanie na sprzedaż

Zachodniopomorskie / Stargardzki / Dolice
Nr oferty
439266
Powierzchnia
54 m2
Liczba pokoi
2
Piętro
2 / 2

2 pokoje z dużą kuchnią I Garaż I Piwnica

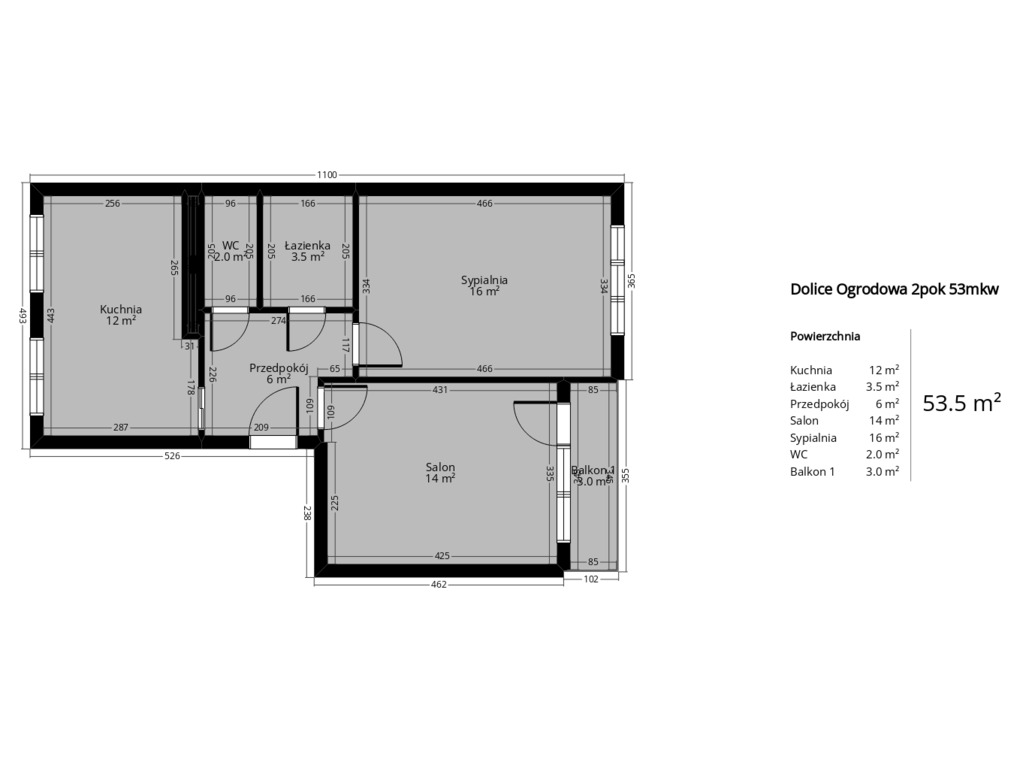
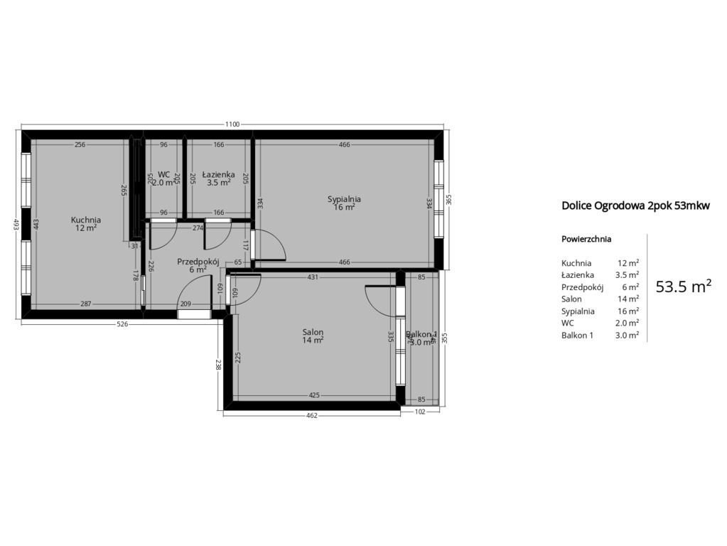
Na sprzedaż przestronne, rozkładowe mieszkanie o powierzchni 53,5 m², położone na 2. piętrze niskiego bloku w miejscowości Dolice. Lokal jest jasny i funkcjonalny, z dużą, widną kuchnią. Niedaleko znajduje się sklep spożywczy, szkoła podstawowa i przedszkole. 

Mieszkanie: 
- pow. 53,5 mkw
- piętro 2/2 
- duży przedpokój
- 2 rozkładowe, słoneczne pokoje 
- duża, widna kuchnia 
- łazienka z prysznicem, miejscem na pralkę  i umywalką
- osobno wc
- balkon 
- czynsz przy trzech osobach z zaliczkami na wodę ok 500 zł
- ogrzewanie i ciepła woda z pieca gazowego 
- ekspozycja okien na północ (kuchnia) i południe (pokoje)

Budynek:
- niski blok 
- duża piwnica o pow. 7,5 mkw. przynależna do mieszkania oraz pomieszczenie wspólne (wózkownia)


Okolica: 
Dolice  – wieś w Polsce, położona w województwie zachodniopomorskim, w powiecie stargardzkim, w gminie Dolice, 20,5 km na południowy wschód od Stargardu. Miejscowość posiada podstawowe elementy infrastruktury potrzebne do codziennego życia – m.in. szkołę, sklepy oraz instytucje publiczne obsługujące mieszkańców gminy. Do Stargardu dojazd zajmuje 25 minut. Przez Dolice kursują pociągi regionalne Polregio m.in. do Choszczna, a także odbywają się przewozy autobusowe publicznego transportu, zapewniając dobrą komunikację. 

Ważne:
- Do mieszkania przynależy duży murowany garaż o pow. 17,7 mkw. Do garażu doprowadzony jest prąd. 
- Czynsz przy trzech osobach z zaliczkami na wodę, śmieci itp. ok. 500 zł  
- pełna własność z KW


Cena nieruchomości
219 000 PLN
Cena za m2
4 093 PLN
Opiekun oferty
ID Nieruchomości
439266
Rynek
wtórny
Powierzchnia
54 m2
Ilośc pokoi
2
Piętro
2
Ilość pięter
2
Rok budowy
1985
Czynsz administracyjny
500 PLN
Rodzaj budynku
Niski blok
Technologia
Beton
Stan nieruchomości
Do remontu
Typ kuchni
Widna
Liczba łazienek
1
Liczba oddzielnych toalet:
1

Opis i cena powyższej oferty nie jest ofertą w rozumieniu Kodeksu Cywilnego i ma jedynie charakter informacyjny, Arka nie ponosi odpowiedzialności za jej kompletność i zgodność ze stanem faktycznym. Dokładamy wszelkich starań aby powyższe informacje były możliwie dokładne, ponieważ jednak pochodzą od osób trzecich, nie zawsze jest możliwa ich weryfikacja.

Kontaktując się z biurem Klient wyraża zgodę na przetwarzanie danych osobowych zgodnie z przepisami ustawy z dnia 29 sierpnia 1997 roku o ochronie danych osobowych / Dz.U.Nr. 133 poz. 883/. Klientowi przysługuje prawo do wglądu do swoich danych osobowych i ich aktualizacji.