Szczecin , os. Przyjaźni

Mieszkanie na sprzedaż

Zachodniopomorskie / Szczecin / os. Przyjaźni
Nr oferty
439104
Powierzchnia
53 m2
Liczba pokoi
3
Piętro
10 / 11

Ładne 3-pokojowe, oś. Przyjaźni - piękny widok!

Poleca się do zakupu mieszkanie z naprawdę pięknym widokiem!
Mieszkanie zlokalizowane jest na 10-tym (nie ostatnim) piętrze polskiego wieżowca na osiedlu Przyjaźni.
Środek osiedla oraz wysokie piętro zapewniają ciszę i spokój.

Spółdzielcze własnościowe prawo - możliwość zakupu przez osoby spoza UE.

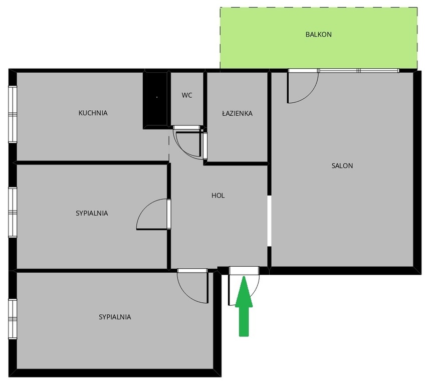
Na powierzchnię 52,5 m2 składają się:
- salon z wyjściem na duży i słoneczny balkon z niesamowitym widokiem,
- 2 oddzielne sypialnie,
- osobna kuchnia z meblami w zabudowie,
- łazienka w glazurze i terakocie, wyposażona w kabinę prysznicową,
- WC,
- przedpokój z szafą w zabudowie.
Mieszkanie nie wymaga żadnych nakładów, można wejść i mieszkać. Na ścianach gładzie, podłogi w panelach, okna PCV.
W cenie mieszkania zawiera się pełne umeblowanie i wyposażenie widoczne na zdjęciach, poza RTV. 

Ogrzewanie i ciepła woda z sieci miejskiej. Czynsz z zaliczkami wynosi ok. 840 zł.

Zapraszam na miłą dla oka prezentację!

Planujesz skredytować to marzenie – zadzwoń.
Cena nieruchomości
499 000 PLN
Cena za m2
9 505 PLN
Opiekun oferty
ID Nieruchomości
439104
Rynek
wtórny
Powierzchnia
53 m2
Ilośc pokoi
3
Piętro
10
Ilość pięter
11
Rok budowy
1980
Czynsz administracyjny
840 PLN
Rodzaj budynku
Wysoki blok
Stan budynku
Dobry
Technologia
Wielka płyta
Stan nieruchomości
Dobry
Ogrzewanie
CO miejskie
Typ kuchni
Oddzielna
Liczba łazienek
1

Opis i cena powyższej oferty nie jest ofertą w rozumieniu Kodeksu Cywilnego i ma jedynie charakter informacyjny, Arka nie ponosi odpowiedzialności za jej kompletność i zgodność ze stanem faktycznym. Dokładamy wszelkich starań aby powyższe informacje były możliwie dokładne, ponieważ jednak pochodzą od osób trzecich, nie zawsze jest możliwa ich weryfikacja.

Kontaktując się z biurem Klient wyraża zgodę na przetwarzanie danych osobowych zgodnie z przepisami ustawy z dnia 29 sierpnia 1997 roku o ochronie danych osobowych / Dz.U.Nr. 133 poz. 883/. Klientowi przysługuje prawo do wglądu do swoich danych osobowych i ich aktualizacji.