Warzymice

Mieszkanie na sprzedaż

Zachodniopomorskie / Policki / Kołbaskowo / Warzymice
Nr oferty
439087
Powierzchnia
68 m2
Liczba pokoi
3
Piętro
0 / 2

3 pokoje z ogrodem 96 m² | Parking | Warzymice

Na sprzedaż przestronne i funkcjonalne mieszkanie o powierzchni 68 m², położone na parterze nowoczesnego budynku z 2018 roku. Lokal jest idealnym rozwiązaniem dla osób ceniących komfort, prywatność oraz dostęp do własnej przestrzeni na zewnątrz.

Mieszkanie należy do pierwszego właściciela i znajduje się na zamkniętym, monitorowanym osiedlu z bramą wjazdową.

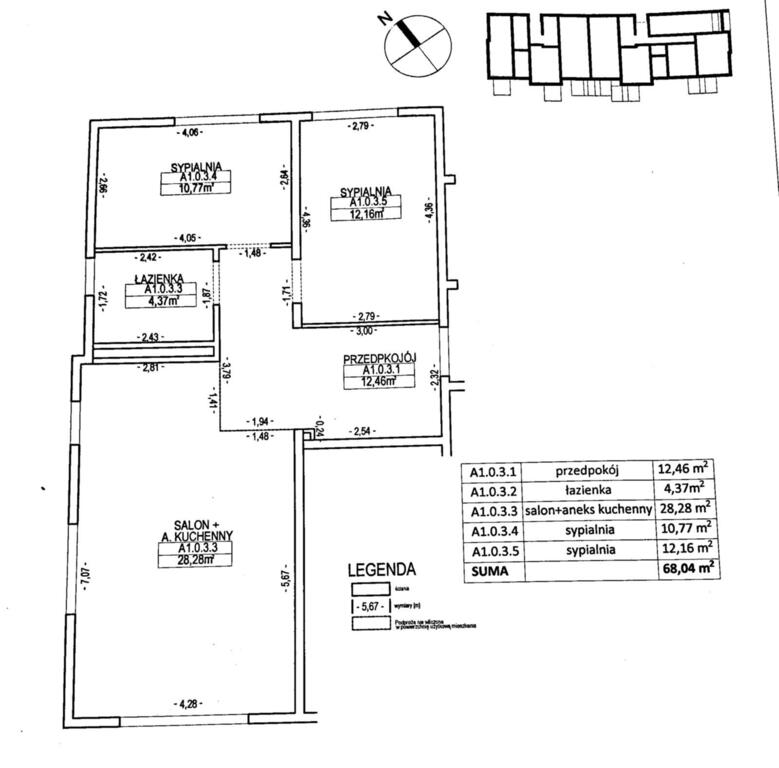
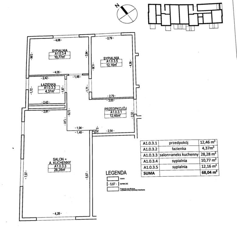
Układ mieszkania:
  • salon z wyjściem do ogrodu
  • 2 sypialnie
  • łazienka
  • dodatkowe WC
  • garderoba

Układ pomieszczeń:
  • salon z aneksem kuchennym – 28,28 m² (z wyjściem do ogrodu)
  • sypialnia – 12,16 m²
  • sypialnia – 10,77 m²
  • łazienka – 4,37 m²
  • przedpokój – 12,46 m²
W przedpokoju wydzielono dodatkowe WC oraz przestronną zabudowaną szafę z miejscem na suszarkę.

We wszystkich oknach zamontowane są rolety antywłamaniowe, moskitiery oraz plisy.

Dużym atutem nieruchomości jest prywatny ogród o powierzchni 96 m² z altanką ogrodową (ok. 4 m²). Dodatkowo właściciele mogą korzystać z przyległego terenu o powierzchni ok. 90 m², co znacząco powiększa przestrzeń rekreacyjną.

Do mieszkania przynależą:
  • komórka lokatorska – 10 m² (z instalacją elektryczną)
  • miejsce parkingowe w garażu podziemnym – 12,5 m²
Miejsce parkingowe wraz z komórką dodatkowo płatne 85 000 zł.

Czynsz administracyjny wynosi ok. 1000 zł i obejmuje m.in.:
  • wodę
  • ciepłą wodę
  • ogrzewanie
  • fundusz remontowy
  • sprzątanie części wspólnych
  • uzdatnianie wody
Dodatkowo płatny jest jedynie prąd.

Standard osiedla:
  • osiedle zamknięte i monitorowane
  • plac zabaw dla dzieci
  • miejsca parkingowe dla gości
  • prywatna stacja uzdatniania wody
  • światłowód z możliwością wyboru operatora
  • osiedlowa serwerownia obsługująca monitoring
  • podgrzewany zjazd do garażu – nawierzchnia nie zamarza zimą
Mieszkanie jest dobrze wygłuszone, co zapewnia wysoki komfort codziennego życia.

Nieruchomość znajduje się w bardzo dobrze skomunikowanej okolicy z szybkim dojazdem do centrum Szczecina.
W pobliżu znajdują się:
  • liczne sklepy i supermarkety
  • punkty usługowe
  • siłownia i restauracje przy Rondzie Hakena
  • Gminny Ośrodek Kultury, Sportu i Rekreacji w Przecławiu
  • kościół
  • placówki edukacyjne (dzieci w szkole w Przylepie korzystają z darmowej komunikacji)

To idealna propozycja dla rodzin, osób pracujących w Szczecinie oraz wszystkich, którzy chcą połączyć wygodę mieszkania z własną przestrzenią ogrodową.
Cena nieruchomości
899 000 PLN
Cena za m2
13 221 PLN
Opiekun oferty
ID Nieruchomości
439087
Rynek
wtórny
Powierzchnia
68 m2
Ilośc pokoi
3
Ilość pięter
2
Rok budowy
2018
Czynsz administracyjny
1000 PLN
Rodzaj budynku
Blok
Technologia
Silikat
Stan nieruchomości
Idealny
Typ kuchni
Otwarta
Wyposażenie kuchni
, Meble w zabudowie kuchenne, Okap, Piekarnik, Lodówka, Zmywarka, Zlewozmywak, Kuchenka elektryczna, Kuchenka mikrofalowa, Płyta grzewcza elektryczna, Zamrażarka,
Liczba łazienek
2
Liczba oddzielnych toalet:
1

Opis i cena powyższej oferty nie jest ofertą w rozumieniu Kodeksu Cywilnego i ma jedynie charakter informacyjny, Arka nie ponosi odpowiedzialności za jej kompletność i zgodność ze stanem faktycznym. Dokładamy wszelkich starań aby powyższe informacje były możliwie dokładne, ponieważ jednak pochodzą od osób trzecich, nie zawsze jest możliwa ich weryfikacja.

Kontaktując się z biurem Klient wyraża zgodę na przetwarzanie danych osobowych zgodnie z przepisami ustawy z dnia 29 sierpnia 1997 roku o ochronie danych osobowych / Dz.U.Nr. 133 poz. 883/. Klientowi przysługuje prawo do wglądu do swoich danych osobowych i ich aktualizacji.