Szczecin , Kępa Parnicka

Mieszkanie na sprzedaż

Zachodniopomorskie / Szczecin / Kępa Parnicka
Nr oferty
440062
Powierzchnia
68 m2
Liczba pokoi
2
Piętro
7 / 9

Nowa Przystań .Apartament z dużym tarasem nad Odrą

Oferta  premium . Widok z dużego tarasu zapiera dech w piersiach o każdej porze dnia i nocy. 

Wyjątkowy apartament  o powierzchni 68 m²  z   2 miejscami parkingowymi i komórką lokatorską  ( łączna kwota sprzedaży 1.650.000zł) Sprzedawany wstanie deweloperskim , a załączone wizualizacje i filmik obrazują potencjał tego miejsca .


Najważniejsze atuty nieruchomości:
  •  Wysokie  VII piętro – gwarancja prywatności i niezakłóconych widoków
  •  Duże, panoramiczne przeszklenia – maksymalne doświetlenie wnętrza
  •  Przestronny taras  o powierzchni 23,32 m2 
  • 2 miejsca parkingowe na poziomie -1  
  • komórka lokatorska 
  • Apartament usytuowany w środkowym budynku  
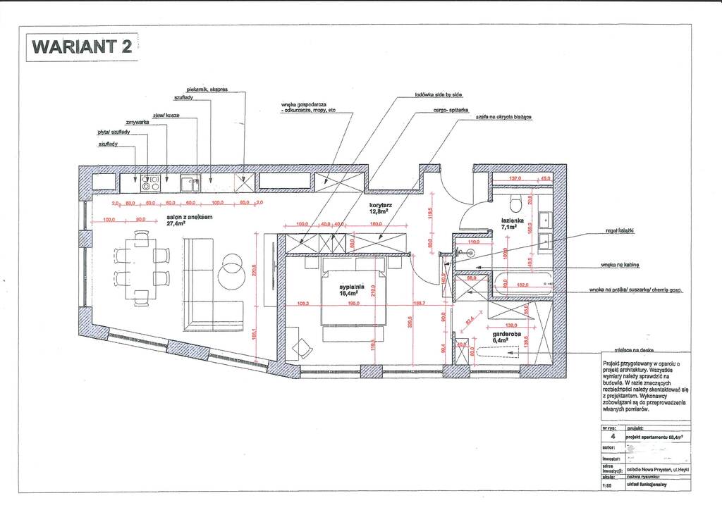
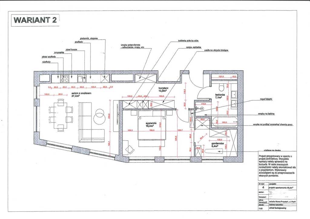
Funkcjonalny układ :
  • Salon z aneksem kuchennym – przestronna, otwarta strefa dzienna z  miejscem na jadalnię ( powierzchnia 27,4 m2)
  • Duża sypialnia ( pow. 16,4  m2)  z wejściem do   garderoby  o pow. 6,4 m2 ( w pierwotnym projekcie to była druga sypialnia ) 
  •  Łazienka ( pow. 7,04 m2 )z prysznicem oraz wanną 
  • Przedpokój ,pow. 12,8 m2  z zaplanowaną zabudową(  np. pojemne szafy , lodówka side by side, cargo , ekspres do kawy) 

Planowany układ funkcjonalny jest do wglądu na załączonych planach  , a możliwości aranżacyjne zostały zwizualizowane  na zdjęcia  i  filmie  załączonych do oferty .

  To nieruchomość idealna zarówno jako komfortowe miejsce do życia, jak i bezpieczna inwestycja kapitału w segmencie premium. Nie było do tej pory takiego miejsca w Szczecinie . Biorąc pod uwagę fakt , że po zakończeniu budowy Nowa Przystań wzbogaci się o bulwar z urokliwymi kafejkami , przystań dla jachtów ,łódek , a na zrewitalizowanym nabrzeżu powstanie ogólnodostępny deptak , można śmiało powiedzieć , że  wartość apartamentów w tym miejscu  będzie rosła .

Powyższa oferta ma wyłącznie charakter informacyjny. Nie stanowi ono oferty w myśl art. 66 i n. ustawy z dnia 23.04.1964r. Kodeks cywilny (Dz.U. 1964r. Nr 16, poz. 93, ze zm.).

Eng.vers. 

A premium offering. The view from the large terrace is breathtaking at any time of day or night.

A unique apartment with an area of 68 m² with 2 parking spaces and a storage room (total sale amount PLN 1,650,000). It is sold in developer condition, and the attached visualizations and a video illustrate the potential of this place.


The most important advantages of the property:
  • High 7th floor – guaranteed privacy and unobstructed views
  • Large, panoramic glazing – maximum interior lighting
  • Spacious terrace with an area of 23.32 m2
  • 2 parking spaces on level -1
  • storage unit
  • Apartment located in the middle building
Functional layout:
  • Living room with kitchenette – spacious, open living area with dining area (area 27.4 m2)
  • Large bedroom (16.4 m2) with access to a 6.4 m2 wardrobe (in the original design it was a second bedroom)
  • Bathroom ( 7.04 m2 ) with shower and bathtub
  • Hallway , area 12.8 m2 with planned built-in furniture (e.g. spacious wardrobes, side-by-side refrigerator, cargo, coffee machine)

The planned functional layout is available for viewing on the attached plans, and the arrangement possibilities are visualized in the photos and video attached to the offer.

    This property is ideal both as a comfortable place to live and as a safe investment in the premium segment. There has never been a place like this in Szczecin before. Considering that, once completed, Nowa Przystań will be enriched by a boulevard with charming cafes, a marina for yachts and boats, and that a public promenade will be created on the revitalized waterfront, it's safe to say that the value of apartments in this location will continue to rise.

    The above offer is for informational purposes only. It does not constitute an offer within the meaning of Article 66 et seq. of the Act of 23 April 1964, the Civil Code (Journal of Laws of 1964, No. 16, item 93, as amended).














      

     
     
    Cena nieruchomości
    1 450 000 PLN
    Cena za m2
    21 000 PLN
    Opiekun oferty
    ID Nieruchomości
    440062
    Rynek
    wtórny
    Powierzchnia
    68 m2
    Ilośc pokoi
    2
    Piętro
    7
    Ilość pięter
    9
    Rok budowy
    2025
    Czynsz administracyjny
    780 PLN
    Rodzaj budynku
    Budynek apartamentowy
    Technologia
    Silikat
    Stan nieruchomości
    Stan deweloperski
    Typ kuchni
    Aneks
    Liczba łazienek
    1

    Opis i cena powyższej oferty nie jest ofertą w rozumieniu Kodeksu Cywilnego i ma jedynie charakter informacyjny, Arka nie ponosi odpowiedzialności za jej kompletność i zgodność ze stanem faktycznym. Dokładamy wszelkich starań aby powyższe informacje były możliwie dokładne, ponieważ jednak pochodzą od osób trzecich, nie zawsze jest możliwa ich weryfikacja.

    Kontaktując się z biurem Klient wyraża zgodę na przetwarzanie danych osobowych zgodnie z przepisami ustawy z dnia 29 sierpnia 1997 roku o ochronie danych osobowych / Dz.U.Nr. 133 poz. 883/. Klientowi przysługuje prawo do wglądu do swoich danych osobowych i ich aktualizacji.