Mierzyn

Dom na sprzedaż

Zachodniopomorskie / Policki / Dobra (szczecińska) / Mierzyn
Nr oferty
438628
Powierzchnia
136 m2
Liczba pokoi
5
Piętro
- / 2

Mierzyn Bliźniak 5 pokoi, garaż, działka 350m2

Na sprzedaż nowoczesny dom w zabudowie bliźniaczej o powierzchni użytkowej 136 m², położony w w Mierzynie. Do domu przynależy działka o powierzchni 350 m².

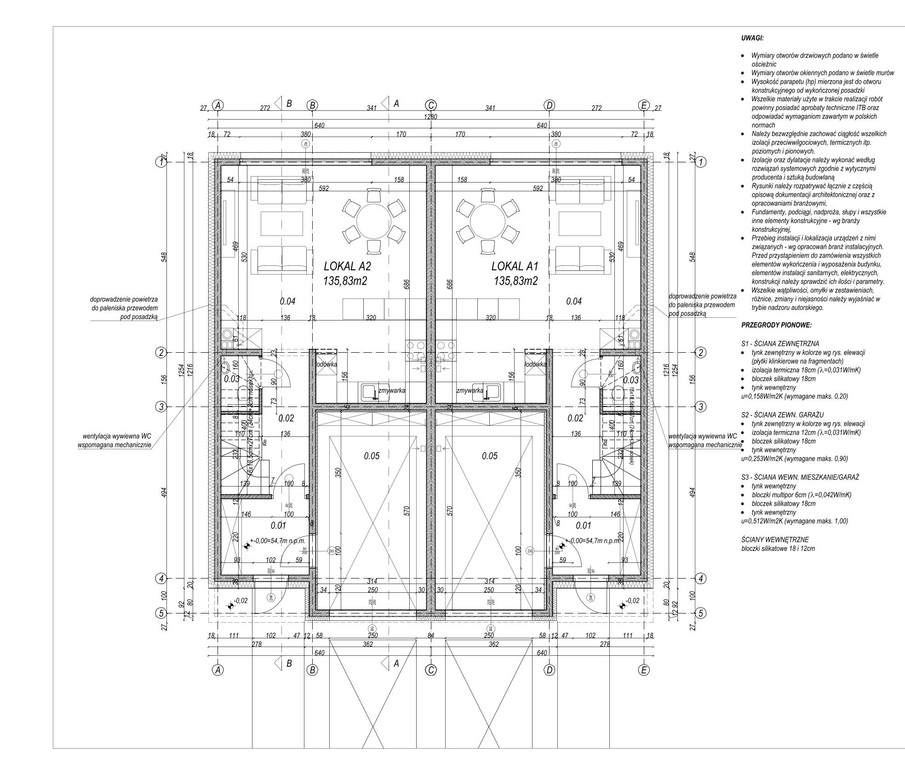
Dom został zaprojektowany z myślą o wygodzie codziennego życia. Na parterze znajduje się przestronna część dzienna z dużym salonem i aneksem kuchennym oraz garaż w bryle budynku. Na piętrze zaplanowano cztery niezależne sypialnie, łazienkę oraz pomieszczenie gospodarcze, co zapewnia komfortową przestrzeń dla całej rodziny.

Rozkład pomieszczeń

Parter – 66,05 m²
• przedsionek – 5,45 m²
• korytarz – 5,52 m²
• WC – 1,68 m²
• salon z aneksem kuchennym – 35,77 m²
• garaż – 17,63 m²

Piętro – 69,78 m²
• sypialnia – 11,11 m²
• sypialnia – 12,59 m²
• sypialnia – 12,98 m²
• sypialnia – 9,09 m²
• łazienka – 7,28 m²
• pomieszczenie gospodarcze – 2,91 m²
• korytarz – 9,37 m²
• schody – 4,45 m²

Dodatkowa przestrzeń
Nad piętrem znajduje się dodatkowe poddasze do adaptacji, które może zostać wykorzystane jako przestrzeń rekreacyjna, pokój hobby, biuro lub dodatkowa strefa przechowywania.

Lokalizacja

Inwestycja położona jest w Mierzynie – w spokojnej części miejscowości, w otoczeniu zabudowy jednorodzinnej, a jednocześnie z szybkim dojazdem do Szczecina.

Komunikacja miejska: przystanek ok. 200 m od inwestycji (około 3 minuty spacerem), skąd w kilkanaście minut można dojechać do centrum Szczecina.

W najbliższej okolicy znajdują się sklepy spożywcze, szkoła podstawowa, przedszkole, plac zabaw oraz tereny zielone z siłownią plenerową – wszystko w odległości do około 1 km.

Dodatkowe atuty

• garaż w bryle budynku
• cztery sypialnie na piętrze
• ogród do własnej aranżacji
• nowoczesna i energooszczędna technologia budowy
• funkcjonalny układ pomieszczeń idealny dla rodziny

Przewidywany termin zakończenia realizacji: 31.06.2026

W razie pytań lub chęci umówienia prezentacji nieruchomości zapraszamy do kontaktu.

Niniejsze ogłoszenie ma charakter informacyjny i nie stanowi oferty w rozumieniu art. 66 §1 Kodeksu cywilnego.
Cena nieruchomości
1 199 000 PLN
Cena za m2
8 827 PLN
Opiekun oferty
ID Nieruchomości
438628
Rynek
pierwotny
Powierzchnia
136 m2
Powierzchnia działki
350 m2
Ilośc pokoi
5
Ilość pięter
2
Rok budowy
2025
Stan budynku
Stan deweloperski
Technologia
Silikat
Typ domu
Bliźniak
Droga dojazdowa
Utwardzona
Kształt działki
Prostokąt
Stan nieruchomości
Stan deweloperski
Typ kuchni
Aneks
Liczba łazienek
1
Powierzchnia łazienki
7,28
Liczba oddzielnych toalet:
1

Opis i cena powyższej oferty nie jest ofertą w rozumieniu Kodeksu Cywilnego i ma jedynie charakter informacyjny, Arka nie ponosi odpowiedzialności za jej kompletność i zgodność ze stanem faktycznym. Dokładamy wszelkich starań aby powyższe informacje były możliwie dokładne, ponieważ jednak pochodzą od osób trzecich, nie zawsze jest możliwa ich weryfikacja.

Kontaktując się z biurem Klient wyraża zgodę na przetwarzanie danych osobowych zgodnie z przepisami ustawy z dnia 29 sierpnia 1997 roku o ochronie danych osobowych / Dz.U.Nr. 133 poz. 883/. Klientowi przysługuje prawo do wglądu do swoich danych osobowych i ich aktualizacji.