Wrzosowo

Działka na sprzedaż

Zachodniopomorskie / Kamieński / Kamień Pomorski / Wrzosowo
Nr oferty
438583
Powierzchnia
150 m2

Duża działka nad Zalewem z domem

.Na sprzedaż działka z rozpoczętą budową domu, zlokalizowana w cichej okolicy, blisko Zalewu Kamieńskim - Zatoka Wrzosowska oraz zaledwie 3 km od plaży w Dziwnówku.
Działka (2,172 m2) ogrodzona  - zadbany trawnik, liczne nasadzenia; dojazd drogą z kostki brukowej.
Obecnie dom w stanie surowym zamkniętym.
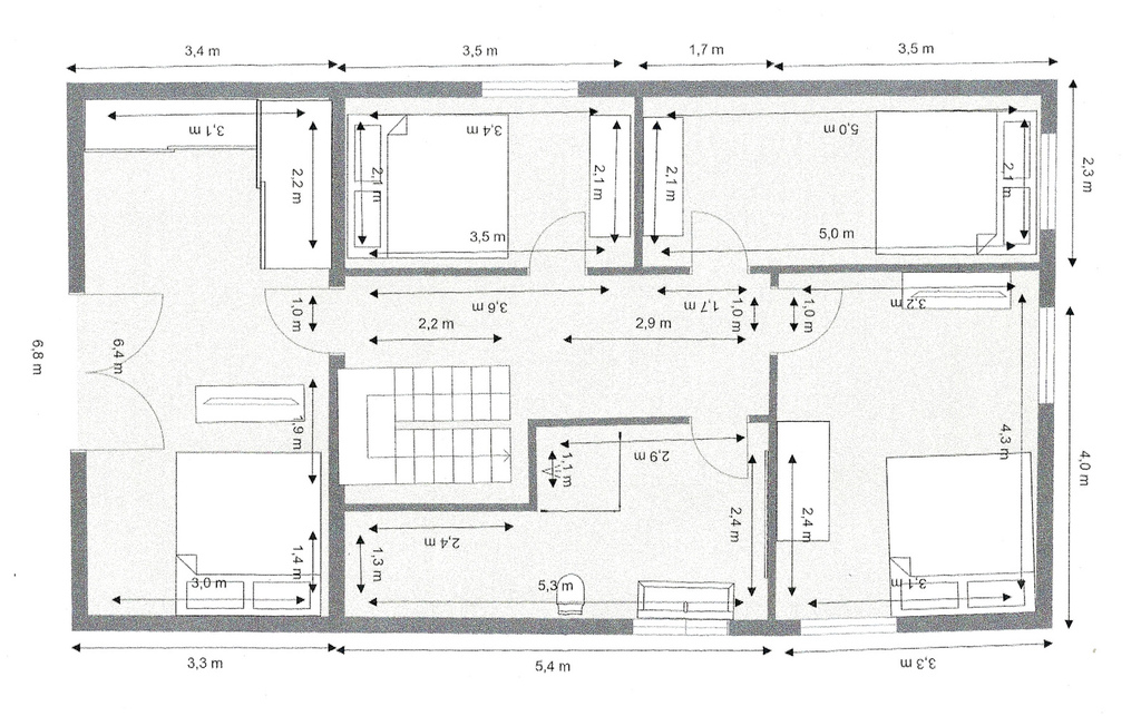
Na parterze :
- duży salon z jadalnią , od strony południowej,
- kuchnia,
- łazienka,
- kotłownia,
- pokój z własna łazienką.

Na piętrze :
- 4 pokoje, w tym jeden z garderobą.
- łazienka.

Dodatkowo poddasze.

W salonie przewidziane miejsce pod kominek.
Z górnych pokoi widok na Zalew.

Dom budowany w technologii tradycyjnej - ściany z POROTHERM , strop żelbetowy lany , okna PCV, dachówka ceramiczna.
W budynku rozciągnięta sieć elektryczna.
Do wykonania pozostało :
- instalacja wod - kan,
- ogrzewanie,
- tynki,
- ocieplenie ścian i poddasza.

Na tym etapie można jeszcze zmienić ustawienie ścianek i rozmieszczenie pomieszczeń.
Garaż w formie wiaty przylegającej do budynku.
Ogrzewanie i ciepła woda z pieca gazowego dwu-obiegowego.
Na działce skrzynka ZK, podłączenie wody i kanalizacji, oraz gaz.

Gmina jest jeszcze w trakcie uchwalania Planu Ogólnego, dzięki czemu można wystąpić o WZ lub zapis w planie o dodatkową zabudowę (np. domem mieszkalnym lub letniskowymi) lub wystąpić o podział działki na mniejsze.
Właściciel wystąpił o zgodę na dwa małe budynki letniskowe pod wynajem.

Cena nieruchomości
950 000 PLN
Cena za m2
7 661 PLN
Opiekun oferty
ID Nieruchomości
438583
Powierzchnia
150 m2
Powierzchnia działki
2 172 m2
Droga dojazdowa
Kostka brukowa
Kształt działki
Trapez

Opis i cena powyższej oferty nie jest ofertą w rozumieniu Kodeksu Cywilnego i ma jedynie charakter informacyjny, Arka nie ponosi odpowiedzialności za jej kompletność i zgodność ze stanem faktycznym. Dokładamy wszelkich starań aby powyższe informacje były możliwie dokładne, ponieważ jednak pochodzą od osób trzecich, nie zawsze jest możliwa ich weryfikacja.

Kontaktując się z biurem Klient wyraża zgodę na przetwarzanie danych osobowych zgodnie z przepisami ustawy z dnia 29 sierpnia 1997 roku o ochronie danych osobowych / Dz.U.Nr. 133 poz. 883/. Klientowi przysługuje prawo do wglądu do swoich danych osobowych i ich aktualizacji.