Szczecin , Niebuszewo

Mieszkanie na sprzedaż

Zachodniopomorskie / Szczecin / Niebuszewo
Nr oferty
438566
Powierzchnia
81 m2
Liczba pokoi
4
Piętro
0 / 4

Dobra cena- mieszkanie dla dużej Rodziny

Planujesz skredytować to marzenie – zadzwoń.
OFERTA SPECJALNA 699 900ZŁ PRZY ZAKUPIE ZA GOTÓWKĘ!

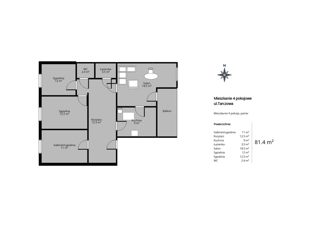
4 pokojowe rozkładowe mieszkanie z ekspozycja na dwie strony świata /wschód od strony trzech sypialni, zachód od strony salonu i kuchni/ zlokalizowane na PARTERZE niskiego bloku z lat 80-tych.

Na powierzchnię 81,4m2 składają się:
Salon  ok.18,5m2
3 sypialnie (12m2, 12,5m2, 11m2)
Kuchnia z 2 wejściami (ok.9m2)
Łazienka 3,5m2
WC 2,4m2
Korytarz 12,5m2

Przestrzeń świetnie zaprojektowana i podzielona na strefę dzienną i nocną-sypialnie zlokalizowane po jednej stronie mieszkania a część dzienna  to salon z wyjściem na balkon i przejściem do kuchni oraz kuchnia z oknami wychodzącymi na balkon i dodatkowym niezależnym wejściem z korytarza.
Mieszkanie zostało wyremontowane około 2022 roku. Wymieniono drzwi, okna, wyremontowano łazienkę i toaletę.

Do mieszkania przynależy duża, 4,5 metrowa piwnica.
FORMA WŁASNOŚCI: pełna własność z KW
OPŁATY: czynsz z zaliczkami na FR, ogrzewanie, gaz ryczałt: 930 zł przy 1 osobie
UWAGA: miejsca parkingowe bezpłatne, ogólnodostępne przy blokach.

Cena nieruchomości
720 000 PLN
Cena za m2
8 845 PLN
Opiekun oferty
ID Nieruchomości
438566
Rynek
wtórny
Powierzchnia
81 m2
Ilośc pokoi
4
Ilość pięter
4
Rok budowy
1985
Czynsz administracyjny
933 PLN
Rodzaj budynku
Niski blok
Stan budynku
Bardzo dobry
Technologia
Wielka płyta
Stan nieruchomości
Bardzo dobry
Ogrzewanie
CO miejskie
Typ kuchni
Oddzielna
Liczba łazienek
2

Opis i cena powyższej oferty nie jest ofertą w rozumieniu Kodeksu Cywilnego i ma jedynie charakter informacyjny, Arka nie ponosi odpowiedzialności za jej kompletność i zgodność ze stanem faktycznym. Dokładamy wszelkich starań aby powyższe informacje były możliwie dokładne, ponieważ jednak pochodzą od osób trzecich, nie zawsze jest możliwa ich weryfikacja.

Kontaktując się z biurem Klient wyraża zgodę na przetwarzanie danych osobowych zgodnie z przepisami ustawy z dnia 29 sierpnia 1997 roku o ochronie danych osobowych / Dz.U.Nr. 133 poz. 883/. Klientowi przysługuje prawo do wglądu do swoich danych osobowych i ich aktualizacji.