Szczecin , Pogodno

Mieszkanie na sprzedaż

Zachodniopomorskie / Szczecin / Pogodno
Nr oferty
438382
Powierzchnia
68 m2
Liczba pokoi
3
Piętro
1 / 2

Świetne , rozkładowe 3 pokoje , I piętro, Pogodno

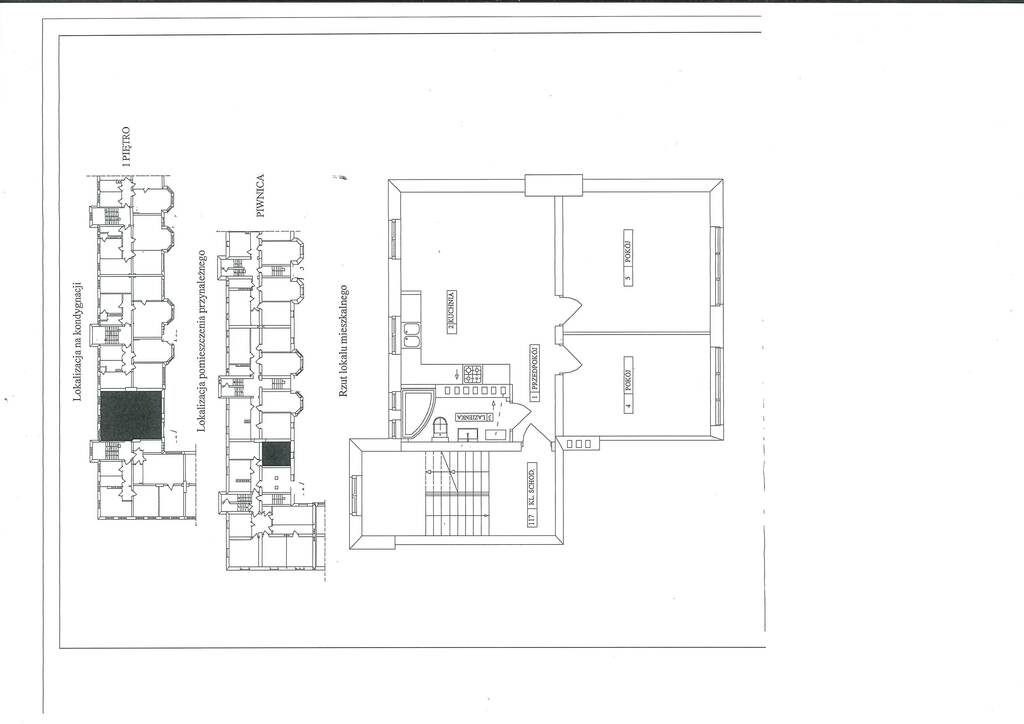
Przedstawiamy ofertę przestronnego  3-pokojowego mieszkania  o bardzo dobrym rozkładzie pomieszczeń.
Usytuowane na I piętrze na Pogodnie w Szczecinie.
 Układ mieszkania:
Kamienica jest lekko cofnięta od głównej ulicy , dzięki temu mamy widok na śliczny skwer
 
  • salon z dużym oknem i możliwością wydzielenia strefy dziennej i jadalnej  z jednej strony (strona  wsch.-pn.)
  • duży aneks kuchenny  w pełni wyposażony z oknem 
  • 2 osobne pokoje – idealne jako sypialnie lub pokój dla dziecka/gości ( płd.) , w oknach szyby dźwiękoszczelne 
  • przestronny przedpokój z szafą i szafką na buty
  • łazienka z wanną 
  • we wszystkich oknach zamontowano rolety zewnętrzne - elektryczne 
 Atuty nieruchomości:
  • komfortowy i praktyczny rozkład pomieszczeń — każde pomieszczenie dostępne z przedpokoju
  • dużo naturalnego światła
  • ogrzewanie podłogowe w kuchni, przedpokoju i łazience 
  • mieszkanie zadbane, do ewentualnego odświeżenia według własnej aranżacji
  • spokojna i zielona okolica z dobrym dostępem do infrastruktury
  • blisko komunikacji miejskiej, sklepów, szkół i przedszkoli
 Lokalizacja – Pogodno, Szczecin:
Jedna z najbardziej pożądanych dzielnic — cicha, bezpieczna i z pełną infrastrukturą usługowo-handlową. W okolicy liczne tereny spacerowe, place zabaw oraz szybki dojazd do centrum miasta.
 Idealne dla:
rodziny, pary, osób ceniących wygodę i funkcjonalny rozkład mieszkania.

Opis nieruchomości zawarty w niniejszej ofercie został sporządzony na podstawie informacji przekazanych nam przez stronę sprzedającą. Zwracamy uwagę, że mogą one zawierać błędy lub nieścisłości. W przypadku zainteresowania ofertą zalecamy osobistą weryfikację tych informacji. Oferta ta nie stanowi oferty w rozumieniu przepisu art. 66 i nast. kodeksu cywilnego."

Cena nieruchomości
612 000 PLN
Cena za m2
9 000 PLN
Opiekun oferty
ID Nieruchomości
438382
Rynek
wtórny
Powierzchnia
68 m2
Ilośc pokoi
3
Piętro
1
Ilość pięter
2
Rok budowy
1939
Czynsz administracyjny
550 PLN
Rodzaj budynku
Kamienica
Technologia
Cegła
Stan nieruchomości
Bardzo dobry
Typ kuchni
Aneks
Wyposażenie kuchni
Meble w zabudowie kuchenne, Piekarnik, Zmywarka, Okap, Lodówka,
Liczba łazienek
1

Opis i cena powyższej oferty nie jest ofertą w rozumieniu Kodeksu Cywilnego i ma jedynie charakter informacyjny, Arka nie ponosi odpowiedzialności za jej kompletność i zgodność ze stanem faktycznym. Dokładamy wszelkich starań aby powyższe informacje były możliwie dokładne, ponieważ jednak pochodzą od osób trzecich, nie zawsze jest możliwa ich weryfikacja.

Kontaktując się z biurem Klient wyraża zgodę na przetwarzanie danych osobowych zgodnie z przepisami ustawy z dnia 29 sierpnia 1997 roku o ochronie danych osobowych / Dz.U.Nr. 133 poz. 883/. Klientowi przysługuje prawo do wglądu do swoich danych osobowych i ich aktualizacji.