Morzyczyn

Dom na sprzedaż

Zachodniopomorskie / Stargardzki / Kobylanka / Morzyczyn
Nr oferty
438479
Powierzchnia
156 m2
Liczba pokoi
5
Piętro
- / 1

Dom w Morzyczynie–Standard Premium - J. Miedwie

Nowoczesny dom w Morzyczynie – Standard Premium blisko Jeziora Miedwie

Zapraszam do zapoznania się z ofertą sprzedaży funkcjonalnego domu w zabudowie bliźniaczej, zlokalizowanego na osiedlu zamkniętym w Morzyczynie.

Inwestycja obejmuje 4 lokale mieszkalne na zamkniętym, kameralnym osiedlu.
Każdy dom charakteryzuje się nowoczesną bryłą, wysokim standardem wykończenia oraz przemyślanym układem wnętrz, idealnym dla rodzin oraz osób pracujących zdalnie.

LOKALIZACJA I OTOCZENIE
Dom położony jest w bezpośrednim sąsiedztwie Jeziora Miedwie – jednego z największych i najczystszych akwenów w regionie. To idealne miejsce dla osób ceniących aktywny wypoczynek:
  • Rekreacja: W okolicy znajduje się amfiteatr, marina motorowodna oraz oświetlona promenada spacerowa.
  • Sport: Morzyczyn to punkt startowy "Pętli Miedwiańskiej" (ok. 52,5 km tras rowerowych) oraz licznych ścieżek biegowych.
  • Komunikacja: Szybki dojazd do Stargardu (10-15 min) oraz Szczecina (ok. 30 min samochodem lub 32 min pociągiem ze stacji Miedwiecko).

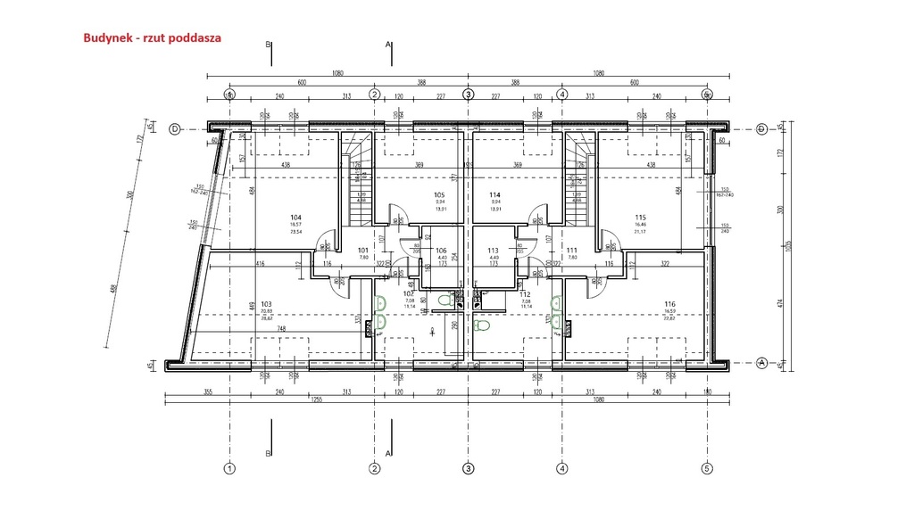
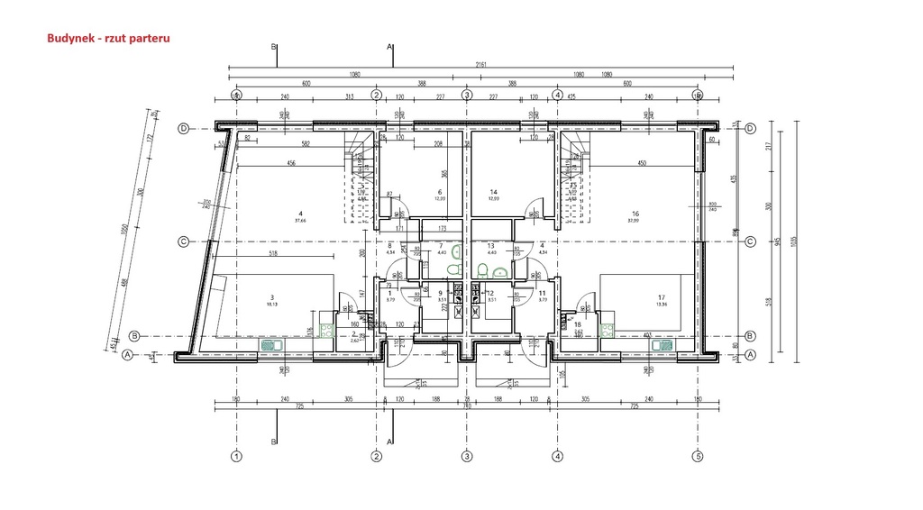
SPECYFIKACJA POMIESZCZEŃ (Powierzchnia użytkowa: 155,55 m2)
Wnętrza zostały zaprojektowane z podziałem na przestronną strefę dzienną (parter) oraz prywatną strefę nocną (piętro).

PARTER (84,50 m2) – wysokość 2,90 m:
  • Przedsionek: 4,00 m2
  • Strefa dzienna z kuchnią: 53,50 m2 (duże przeszklenia, wyjście na taras)
  • Pomieszczenie biurowe: 13,80 m2 (idealne do pracy zdalnej)
  • Łazienka: 4,20 m2
  • Pomieszczenie techniczne: 4,00 m2
  • Spiżarnia: 5,00 m2 (bezpośrednio przy kuchni)
PIĘTRO (71,05 m2) – wysokość 2,70 m:
  • 3 x Sypialnia 11,70 m2, 18,65 m2, 18,30 m2
  • Łazienka: 9,30 m2 (miejsce na wannę i prysznic)
  • Pralnia: 4,40 m2 (praktyczne rozwiązanie w strefie sypialnianej)
  • Hol: 8,70 m2

STANDARD WYKONANIA I TECHNOLOGIA
Budynki realizowane są przy użyciu wysokiej jakości materiałów, zapewniających doskonałą izolację termiczną i trwałość:
  • Konstrukcja: Płyta fundamentowa grzewcza (25 cm + XPS) oraz ściany z betonu komórkowego (24 cm) z ociepleniem styropianem (20 cm).
  • Elewacja: Panele WPC o strukturze drewna na parterze oraz blacha na rąbek stojący marki RUKKI w kolorze antracytowym.
  • Stolarka: Aluminiowe okna 3-szybowe (system AluSky/Alusystem). W oknach szczytowych zastosowano bezpieczne szkło klejone.
  • Ogrzewanie: Podłogowe w całym domu (płyta grzewcza na parterze, klasyczna podłogówka wodna na piętrze). Instalacja przygotowana pod piec gazowy.
  • Instalacje: Dom przygotowany pod montaż rekuperacji, alarmu, monitoringu oraz wideodomofonu.

DZIAŁKA I INFRASTRUKTURA
Do każdego domu przynależy działka o powierzchni ok. 600 m2. Mieszkańcy mają również prawo do korzystania z terenu wspólnego na terenie swojego miniosiedla.
  • Teren zamknięty, brama przesuwna sterowana pilotem.
  • Podjazdy wykończone kostką polbruk.
  • Ogrodzenie panelowe w kolorze antracytowym.

INWESTYCJA
Inwestycja w Morzyczynie to również bezpieczna lokata kapitału w regionie o stale rosnącym prestiżu. Wartość nieruchomości wspierają zaplanowane na lata 2025–2026 kluczowe inwestycje gminne, w tym budowa nowoczesnego Centrum Kultury przy amfiteatrze oraz sukcesywna modernizacja infrastruktury drogowej i turystycznej w okolicy.
Ze względu na bezpośrednie sąsiedztwo Jeziora Miedwie, które przyciąga rocznie około 200 tysięcy turystów, nieruchomość ta posiada wysoki potencjał do generowania dochodu pasywnego z wynajmu krótkoterminowego, którego rentowność w regionach turystycznych bywa nawet o 100% wyższa niż w przypadku najmu długoterminowego.

Oferta dotyczy jednego domu w zabudowie bliźniaczej w stanie deweloperskim.
Istnieje możliwość wyboru konkretnego lokalu spośród 4 dostępnych jednostek.

Zapraszam do kontaktu w celu umówienia prezentacji i poznania szczegółów inwestycji.
 
Cena nieruchomości
1 399 000 PLN
Cena za m2
8 994 PLN
Opiekun oferty
ID Nieruchomości
438479
Rynek
pierwotny
Powierzchnia
156 m2
Powierzchnia działki
600 m2
Ilośc pokoi
5
Ilość pięter
1
Rok budowy
2026
Stan budynku
Stan deweloperski
Technologia
Bloczki
Typ domu
Bliźniak
Droga dojazdowa
Asfalt
Kształt działki
Prostokąt
Stan nieruchomości
Stan deweloperski
Typ kuchni
Aneks
Liczba łazienek
2
Powierzchnia tarasu:
20

Opis i cena powyższej oferty nie jest ofertą w rozumieniu Kodeksu Cywilnego i ma jedynie charakter informacyjny, Arka nie ponosi odpowiedzialności za jej kompletność i zgodność ze stanem faktycznym. Dokładamy wszelkich starań aby powyższe informacje były możliwie dokładne, ponieważ jednak pochodzą od osób trzecich, nie zawsze jest możliwa ich weryfikacja.

Kontaktując się z biurem Klient wyraża zgodę na przetwarzanie danych osobowych zgodnie z przepisami ustawy z dnia 29 sierpnia 1997 roku o ochronie danych osobowych / Dz.U.Nr. 133 poz. 883/. Klientowi przysługuje prawo do wglądu do swoich danych osobowych i ich aktualizacji.