Mierzyn

Dom na sprzedaż

Zachodniopomorskie / Policki / Dobra (szczecińska) / Mierzyn
Nr oferty
438316
Powierzchnia
79 m2
Liczba pokoi
4
Piętro
- / 1

Mierzyn, 4 pokoje, 2 m.postojowe, ogródek, bez PCC

Nowa inwestycja 2025 zakończona! ostatnie domy na sprzedaż.

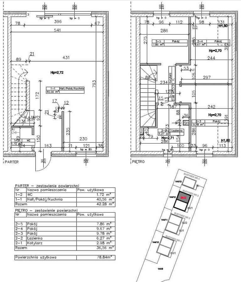
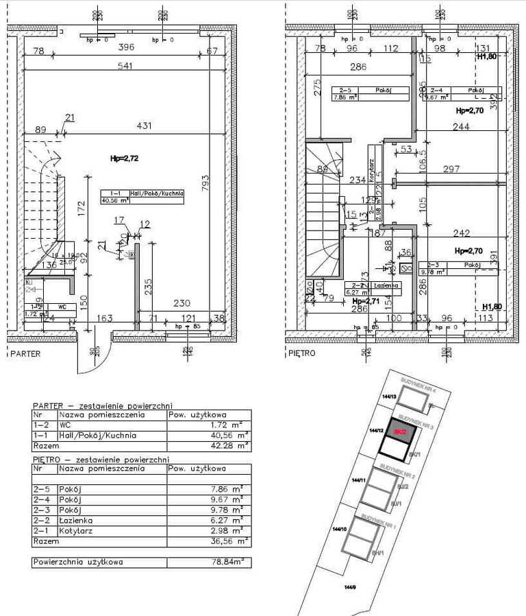
Prezentujemy ostatni dostępny lokal dwupoziomowy w zabudowie bliźniaczej w centrum Mierzyna o powierzchni 78,84 m2. Stan deweloperski.

STAN DEWELOPERSKI - surowy
* LOKAL NR 1 - ostatni
Lokal o powierzchni 78,84m2 w cenie 770.000 zł
Ogród ok. 52m2
Powierzchnia działki 103m2

Lokal składa się z:
PARTER:
* przedpokój, salon z aneksem kuchennym oraz wyjściem do ogrodu ok. 40,56 m2
* osobne wc z umywalką ok. 1,72 m2
PIĘTRO 1
* pokój 1 ok. 7,86 m2
* pokój 2 ok. 9,67 m2
* pokój 3 ok. 9,78 m2
* łazienka z wc, wanną oraz prysznicem ok. 6,27 m2
* kortytarz ok 2,98 m2

W cenie lokalu własny ogródek oraz dwa zewnętrzne miejsca postojowe.
Lokal bezczynszowy. Można założyć ogrzewanie podłogowe - pompa ciepła. Okna PCV trzyszybowe.
Woda oraz kanalizacja z sieci gminnej.

Dodatkowa kwota za udział w drodze 6150 zł brutto – płatna jednorazowo do umowy przeniesienia własności.
 
ZDJĘCIA PREZENTUJĄ STAN RZECZYWISTY lokalu wykończonego (który już został sprzedany) oraz przykładowe wizualizacje do własnej aranżacji. Sprzedawany jest lokal w stanie deweloperskim - surowym.

Polecam ze względu na lokalizację, spokojną i cichą okolicę idealną do odpoczynku.

Zapraszam na pierwszą prezentację.
Cena nieruchomości
770 000 PLN
Cena za m2
9 767 PLN
Opiekun oferty
ID Nieruchomości
438316
Rynek
pierwotny
Powierzchnia
79 m2
Powierzchnia działki
103 m2
Ilośc pokoi
4
Ilość pięter
1
Rok budowy
2025
Czynsz administracyjny
0 PLN
Stan budynku
Stan deweloperski
Technologia
Silikat
Typ domu
Bliźniak
Droga dojazdowa
Asfalt
Stan nieruchomości
Stan deweloperski
Typ kuchni
Aneks
Liczba łazienek
1
Liczba oddzielnych toalet:
1

Opis i cena powyższej oferty nie jest ofertą w rozumieniu Kodeksu Cywilnego i ma jedynie charakter informacyjny, Arka nie ponosi odpowiedzialności za jej kompletność i zgodność ze stanem faktycznym. Dokładamy wszelkich starań aby powyższe informacje były możliwie dokładne, ponieważ jednak pochodzą od osób trzecich, nie zawsze jest możliwa ich weryfikacja.

Kontaktując się z biurem Klient wyraża zgodę na przetwarzanie danych osobowych zgodnie z przepisami ustawy z dnia 29 sierpnia 1997 roku o ochronie danych osobowych / Dz.U.Nr. 133 poz. 883/. Klientowi przysługuje prawo do wglądu do swoich danych osobowych i ich aktualizacji.