Mierzyn

Mieszkanie na sprzedaż

Zachodniopomorskie / Policki / Dobra (szczecińska) / Mierzyn
Nr oferty
438276
Powierzchnia
49 m2
Liczba pokoi
2
Piętro
0 / 3

Mierzyn 2 pokoje z ogrodem

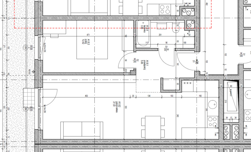
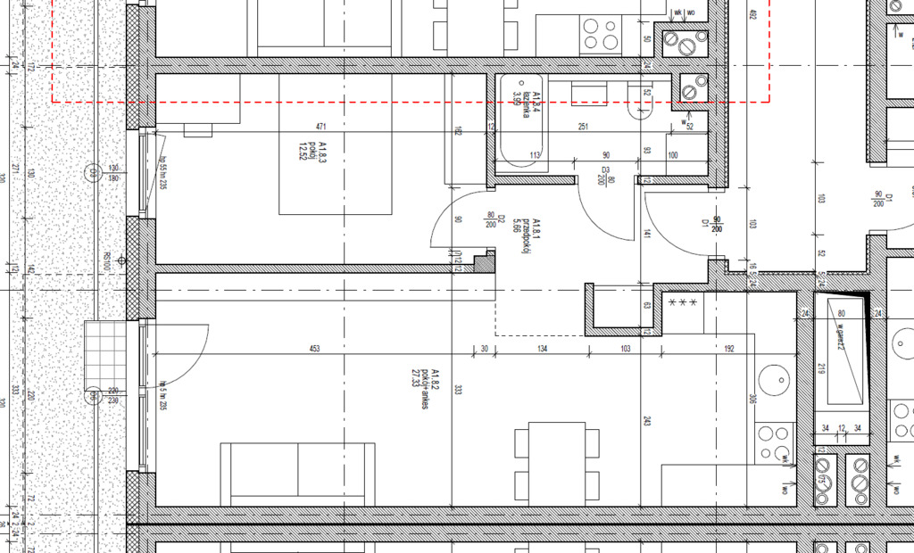
Na sprzedaż dwupokojowe mieszkanie w standardzie deweloperskim w niskim budynku na Mierzynie.

Mieszkanie z wyjściem na ogród o pow. ok 55 m2

Na powierzchnię użytkową 49,9 składają się:
  •  salon z aneksem kuchennym o pow. 27m2
  •  pokój o pow. 12,5m2
  • łazienka z toaletą o pow. 3,99m2
  • korytarz 

W standardzie deweloperskim :

  • okna trzyszybowe 
  •  tynki gipsowe, maszynowe
  •  rozprowadzona instalacja elektryczna, wodno-kanalizacyjna, grzewcza
  •  rozprowadzona instalacja telewizyjna i internetowa
  •  w sypialniach grzejniki panelowe w łazience grzejnik drabinkowy .

Do każdego mieszkania trzeba dokupić obligatoryjnie minimum jedno miejsce parkingowe znajdujące się w hali garażowej pod budynkiem ( winda zjeżdża na poziom: -1 ). 
Budynek bez barier architektonicznych . 

Ogrzewanie i ciepła woda z SEC'u.

Nowoczesna architektura, kompleksowo zagospodarowany teren osiedla, chodniki, niskie nasadzenia, plac zabaw dla najmłodszych.
Doskonała lokalizacja, spokojne sąsiedztwo, niska zabudowa, w pobliżu: szkoła ,żłobek, przedszkole, sklepy. 
Zapraszam na prezentację
Cena nieruchomości
554 288 PLN
Cena za m2
11 200 PLN
Opiekun oferty
ID Nieruchomości
438276
Rynek
pierwotny
Powierzchnia
49 m2
Ilośc pokoi
2
Ilość pięter
3
Rok budowy
2026
Czynsz administracyjny
300 PLN
Rodzaj budynku
Niski blok
Technologia
Cegła
Stan nieruchomości
Stan deweloperski
Typ kuchni
Aneks
Powierzchnia kuchni
7
Liczba łazienek
1

Opis i cena powyższej oferty nie jest ofertą w rozumieniu Kodeksu Cywilnego i ma jedynie charakter informacyjny, Arka nie ponosi odpowiedzialności za jej kompletność i zgodność ze stanem faktycznym. Dokładamy wszelkich starań aby powyższe informacje były możliwie dokładne, ponieważ jednak pochodzą od osób trzecich, nie zawsze jest możliwa ich weryfikacja.

Kontaktując się z biurem Klient wyraża zgodę na przetwarzanie danych osobowych zgodnie z przepisami ustawy z dnia 29 sierpnia 1997 roku o ochronie danych osobowych / Dz.U.Nr. 133 poz. 883/. Klientowi przysługuje prawo do wglądu do swoich danych osobowych i ich aktualizacji.