Warzymice

Mieszkanie na sprzedaż

Zachodniopomorskie / Policki / Kołbaskowo / Warzymice
Nr oferty
438177
Powierzchnia
89 m2
Liczba pokoi
4
Piętro
2 / 2

Super 4 Pokoje - 2 Balkony - Warzymice

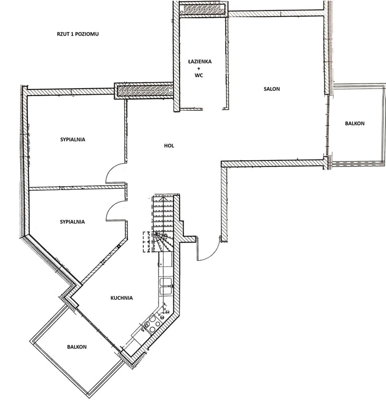
Prezentujemy Państwu na sprzedaż 4 pokojowe mieszkanie o pow. ok.  89 m2 usytuowane na 2 piętrze niskiego budynku na klimatycznym i zamkniętym osiedlu na Warzymicach.

Nieruchomość o bardzo ciekawym rozkładzie pomieszczeń, funkcjonalnie i przyjemnie zaaranżowana.

Na powierzchnię mieszkania składają się dwa poziomy.

Na pierwszym znajdują się spory salon o pow. ok.  23 m2 w wyjściem na balkon, dwie sypialnie, kuchnia z wyjściem na balkon, łazienka z WC oraz duży hol z szafami w zabudowie.
Łazienka spora wyposażona w wannę, kabinę prysznicową WC oraz bidet, wykończona gustownymi kaflami.
Kuchnia urządzona bardzo funkcjonalnie, z meblami w zabudowie .

Na drugim poziomie znajduje się duża przestrzeń gdzie znajduje się sypialnia z garderobą oraz część przeznaczona na gabinet.

Nieruchomość w bardzo dobrym stanie, nowocześnie zaaranżowana i przyjemna dla oka. 
Liczne punktowe oświetlenie oraz wystrój dają bardzo przyjemny klimat.

Czynsz ok. 1200 + 330 zł fundusz remontowy. Ogrzewanie oraz ciepła woda w czynszu (miejskie).
Do użytku 2 piwnice!

Istnieje możliwość dokupienia garażu.

Budynek w świetnym stanie z ładną klatką oraz przyjemną infrastrukturą na całym osiedlu.
Osiedle strzeżone i monitorowane z licznymi miejscami parkingowymi.

Okolica przyjazna rodzinie. W pobliżu sklepy, punkty usługowe oraz miejsca do rekreacji!

Szczególnie polecamy ze względu na lokalizację oraz standard nieruchomości!
Zapraszamy na prezentacje
Cena nieruchomości
890 000 PLN
Cena za m2
10 019 PLN
Opiekun oferty
ID Nieruchomości
438177
Rynek
wtórny
Powierzchnia
89 m2
Ilośc pokoi
4
Piętro
2
Ilość pięter
2
Rok budowy
2009
Czynsz administracyjny
1200 PLN
Rodzaj budynku
Niski blok
Technologia
Cegła
Stan nieruchomości
Bardzo dobry
Typ kuchni
Widna
Liczba łazienek
1
Liczba balkonów:
2

Opis i cena powyższej oferty nie jest ofertą w rozumieniu Kodeksu Cywilnego i ma jedynie charakter informacyjny, Arka nie ponosi odpowiedzialności za jej kompletność i zgodność ze stanem faktycznym. Dokładamy wszelkich starań aby powyższe informacje były możliwie dokładne, ponieważ jednak pochodzą od osób trzecich, nie zawsze jest możliwa ich weryfikacja.

Kontaktując się z biurem Klient wyraża zgodę na przetwarzanie danych osobowych zgodnie z przepisami ustawy z dnia 29 sierpnia 1997 roku o ochronie danych osobowych / Dz.U.Nr. 133 poz. 883/. Klientowi przysługuje prawo do wglądu do swoich danych osobowych i ich aktualizacji.