Szczecin , os. Bukowe

Mieszkanie na sprzedaż

Zachodniopomorskie / Szczecin / os. Bukowe
Nr oferty
437985
Powierzchnia
73 m2
Liczba pokoi
3
Piętro
2 / 2

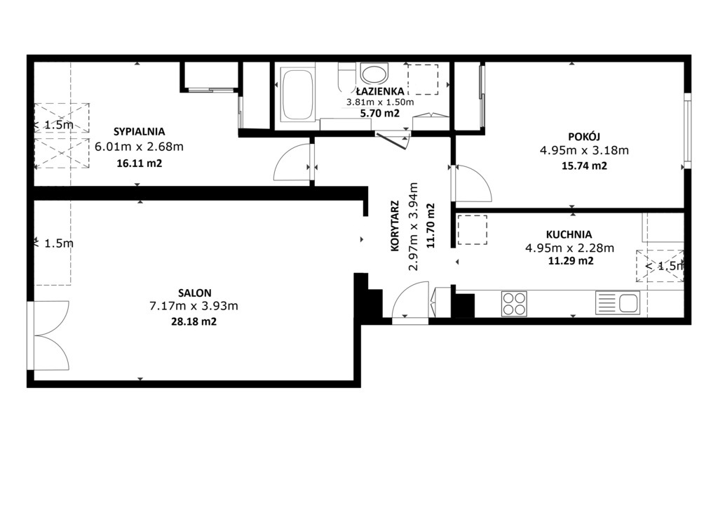
3 pokoje z balkonem, obok Puszczy, 2005 r.

Na sprzedaż 3-pokojowe mieszkanie zlokalizowane na osiedlu Bukowym na prawobrzeżu Szczecina, około 100 m od Puszczy Bukowej.

Lokal położony na 2 piętrze w niskim bloku z 2005 roku. Budynek zadbany, klatka schodowa w bardzo dobrym stanie. 

Powierzchnia mieszkania wynosi 72,54 m² zgodnie z księgą wieczystą, natomiast powierzchnia po podłodze to około 86 m². 

Układ mieszkania jest dwustronny i funkcjonalny.
Składa się z:
- salonu z wyjściem na balkon
- dwóch sypialni
- osobnej kuchni
- łazienki z WC

Mieszkanie zadbane, przytulne i gotowe do zamieszkania. Ogrzewanie oraz ciepła woda z sieci miejskiej, przy czym dla ciepłej wody obowiązuje osobna umowa z SEC. Czynsz wynosi 648,66 zł.

Przed budynkiem dostępne są ogólnodostępne miejsca postojowe.
Lokal sprawdzi się jako mieszkanie dla rodziny, która szuka większej przestrzeni oraz bliskości terenów zielonych.

Zapraszam do kontaktu w celu uzyskania szczegółowych informacji oraz umówienia prezentacji.
Cena nieruchomości
652 000 PLN
Cena za m2
8 988 PLN
Opiekun oferty
ID Nieruchomości
437985
Rynek
wtórny
Powierzchnia
73 m2
Ilośc pokoi
3
Piętro
2
Ilość pięter
2
Rok budowy
2005
Czynsz administracyjny
648.66 PLN
Rodzaj budynku
Niski blok
Stan budynku
Doskonały
Technologia
Cegła
Stan nieruchomości
Idealny
Ogrzewanie
CO miejskie
Typ kuchni
Oddzielna

Opis i cena powyższej oferty nie jest ofertą w rozumieniu Kodeksu Cywilnego i ma jedynie charakter informacyjny, Arka nie ponosi odpowiedzialności za jej kompletność i zgodność ze stanem faktycznym. Dokładamy wszelkich starań aby powyższe informacje były możliwie dokładne, ponieważ jednak pochodzą od osób trzecich, nie zawsze jest możliwa ich weryfikacja.

Kontaktując się z biurem Klient wyraża zgodę na przetwarzanie danych osobowych zgodnie z przepisami ustawy z dnia 29 sierpnia 1997 roku o ochronie danych osobowych / Dz.U.Nr. 133 poz. 883/. Klientowi przysługuje prawo do wglądu do swoich danych osobowych i ich aktualizacji.