PL Wisełka

Obiekt na sprzedaż

Zachodniopomorskie / Kamieński / Wolin / Wisełka
Nr oferty
437302
Powierzchnia
122 m2
Liczba pokoi
2

SUPER OKAZJA !!! Inwestuj i zarabiaj cały rok.

Na sprzedaż gotowy wykończony obiekt z 4 apartamentami nad Morzem Bałtyckim w Wisełce. Idealny pod inwestycję.

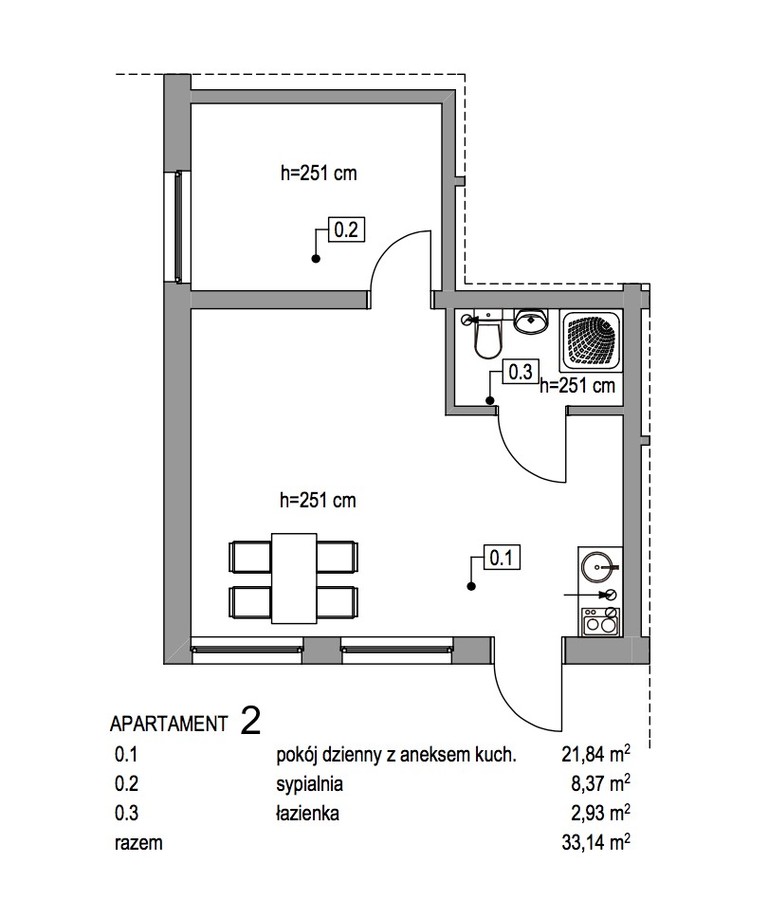
- powierzchnie apartamentów - 33,14m2, 33,14m2, 26,92m2, 28,93m2
- 2 pokoje w każdym apartamencie w pełni wyposażone
- ogrzewanie podłogowe
- taras/ogród
- 4 miejsca parkingowe na działce

Gotowiec inwestycyjny - 4 apartamenty gotowe na wynajem, w pełni wyposażone z miejscami parkingowymi na działce o powierzchni 568m2.
W każdym z apartamentów znajduje się: w salonie kanapa, stolik kawowy, stół z czterema krzesłami, telewizor smart TV, w sypialni łóżko dwuosobowe, aneks kuchenny wyposażony w zabudowę szafek kuchennych, płytę grzewczą 2 - palnikową, lodówkę 60, oraz szafa dwudrzwiowa z lustrami. Ogrzewanie elektryczne podłogowe, jak również woda z pieca elektrycznego firmy Ariston sterowany zdalnie przez wi-fi. Meble ogrodowe oraz 4 miejsca parkingowe na działce.

W pobliżu jest pole golfowe w Kołczewie, punkty małej gastronomi. Jezioro Wisełka w odległości ok 500m od apartamentu, do morza spacerkiem 15 minut przez Woliński Park Narodowy.

Nie zwlekaj, zadzwoń i dowiedz się więcej.

Mapka nie odzwierciedla faktycznej lokalizacji.

Treść niniejszego ogłoszenia nie stanowi oferty handlowej w rozumieniu Kodeksu Cywilnego. Treść ma charakter informacyjny i zalecamy ich osobistą weryfikację. Kontaktując się z biurem Klient wyraża zgodę na przetwarzanie danych osobowych zgodnie z przepisami ustawy z dnia 29 sierpnia 1997 roku o ochronie danych osobowych / Dz.U.Nr. 133 poz. 883/. Klientowi przysługuje prawo do wglądu do swoich danych osobowych i ich aktualizacji.

Cena nieruchomości
1 890 000 PLN
Cena za m2
15 475 PLN
Opiekun oferty
ID Nieruchomości
437302
Rynek
wtórny
Powierzchnia
122 m2
Powierzchnia działki
568 m2
Ilośc pokoi
2
Rok budowy
2020
Czynsz administracyjny
0 PLN
Stan budynku
Bardzo dobry
Droga dojazdowa
Brak drogi
Przeznaczenie (obiekt)
Sportowo / rekreacyjne

Opis i cena powyższej oferty nie jest ofertą w rozumieniu Kodeksu Cywilnego i ma jedynie charakter informacyjny, Arka nie ponosi odpowiedzialności za jej kompletność i zgodność ze stanem faktycznym. Dokładamy wszelkich starań aby powyższe informacje były możliwie dokładne, ponieważ jednak pochodzą od osób trzecich, nie zawsze jest możliwa ich weryfikacja.

Kontaktując się z biurem Klient wyraża zgodę na przetwarzanie danych osobowych zgodnie z przepisami ustawy z dnia 29 sierpnia 1997 roku o ochronie danych osobowych / Dz.U.Nr. 133 poz. 883/. Klientowi przysługuje prawo do wglądu do swoich danych osobowych i ich aktualizacji.