Szczecin , os. Słoneczne

Mieszkanie na sprzedaż

Zachodniopomorskie / Szczecin / os. Słoneczne
Nr oferty
436576
Powierzchnia
64 m2
Liczba pokoi
3
Piętro
2 / 4

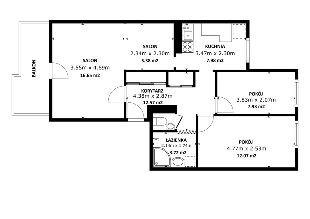
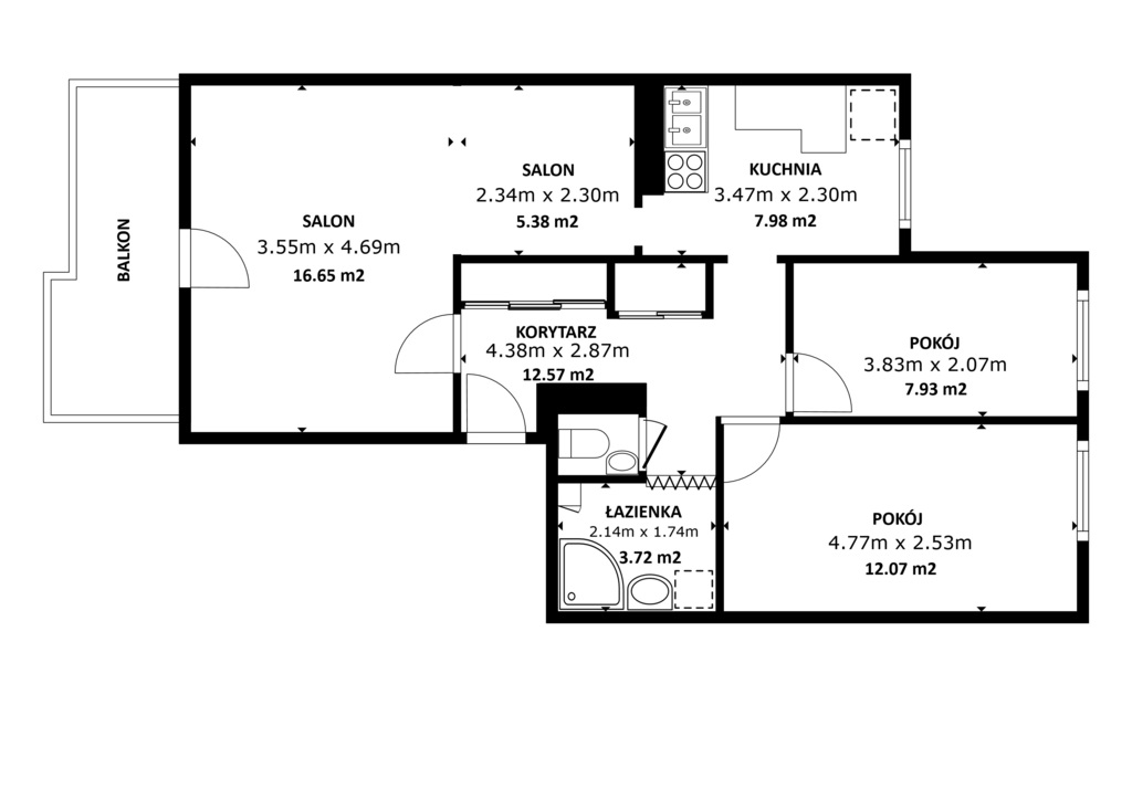
Przestronne 3 pokoje, balkon, piwnica, parking

Na sprzedaż mieszkanie o powierzchni 63,87 m² zlokalizowane na Osiedlu Słonecznym przy ul. Jasnej w Szczecinie.

Lokal znajduje się na 2. piętrze w budynku z lat 90., bez windy.

W skład mieszkania wchodzą:
  • przestronny salon z wyjściem na balkon,
  • dwie sypialnie,
  • oddzielna kuchnia,
  • łazienka,
  • osobne WC,
  • przedpokój.

Dodatkowo do lokalu przynależy piwnica o powierzchni 6,12 m² (wpisana w księgę wieczystą).

Do dyspozycji mieszkańców jest parking za szlabanem, dostępny wyłącznie dla mieszkańców.

Mieszkanie w stanie do własnej aranżacji – idealne, jeśli chcesz urządzić wnętrze po swojemu.

Media: ogrzewanie i woda z sieci miejskiej.
Forma własności: pełna własność z księgą wieczystą.

Czynsz: 693,42 zł (w tym ogrzewanie, fundusz remontowy, gaz, ścieki, wywóz odpadów, podgrzanie i zimna woda, zaliczka na część wspólną).
Cena ofertowa: 567 000 zł.

Atuty lokalizacji:
Osiedle Słoneczne to spokojna, dobrze skomunikowana część Prawobrzeża. W pobliżu znajdują się sklepy (m.in. Selgros), szkoły, przedszkole, a także pętla autobusowa – na tyle blisko, by zapewnić wygodny dojazd, ale wystarczająco daleko, by nie było jej słychać.

To doskonała propozycja dla pary, rodziny lub inwestora szukającego mieszkania pod wynajem.

Zapraszam na prezentację. 
Cena nieruchomości
549 000 PLN
Cena za m2
8 596 PLN
Opiekun oferty
ID Nieruchomości
436576
Rynek
wtórny
Powierzchnia
64 m2
Ilośc pokoi
3
Piętro
2
Ilość pięter
4
Rok budowy
1990
Czynsz administracyjny
693.42 PLN
Rodzaj budynku
Niski blok
Stan budynku
Doskonały
Technologia
Wielka płyta
Stan nieruchomości
Dobry
Ogrzewanie
CO miejskie
Typ kuchni
Oddzielna
Liczba łazienek
1

Opis i cena powyższej oferty nie jest ofertą w rozumieniu Kodeksu Cywilnego i ma jedynie charakter informacyjny, Arka nie ponosi odpowiedzialności za jej kompletność i zgodność ze stanem faktycznym. Dokładamy wszelkich starań aby powyższe informacje były możliwie dokładne, ponieważ jednak pochodzą od osób trzecich, nie zawsze jest możliwa ich weryfikacja.

Kontaktując się z biurem Klient wyraża zgodę na przetwarzanie danych osobowych zgodnie z przepisami ustawy z dnia 29 sierpnia 1997 roku o ochronie danych osobowych / Dz.U.Nr. 133 poz. 883/. Klientowi przysługuje prawo do wglądu do swoich danych osobowych i ich aktualizacji.