Szczecin , Centrum

Mieszkanie na sprzedaż

Zachodniopomorskie / Szczecin / Centrum
Nr oferty
434431
Powierzchnia
38 m2
Liczba pokoi
2
Piętro
5 / 5

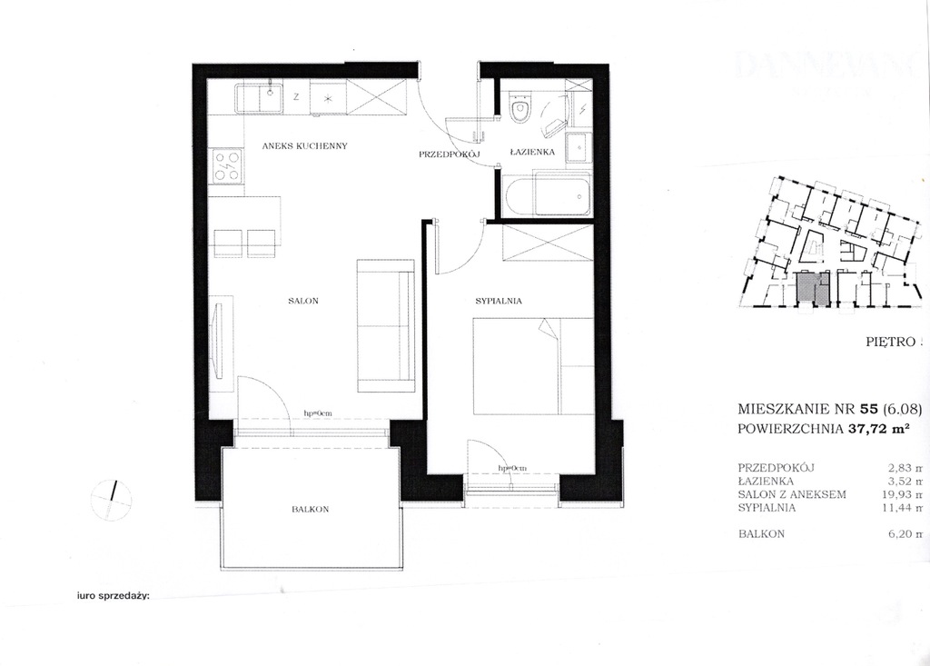
Nowa inwestycja 2 pokoje 37,72 m2, balkon 6,2 m2

W nowej inwestycji, w której zastosowano nowoczesne rozwiązania i nowoczesny design w centrum Szczecina.

OPIS MIESZKANIA: mieszkanie 2 pokojowe o powierzchni 37,72 m2, z wyjściem na balkon o powierzchni 6,2 m2. Pokój z aneksem kuchennym o powierzchni 19,93 m2, łazienka 3,52 m2, przedpokój 2,83 m2. Balkon od strony południowej o powierzchni 6,2 m2. V piętro w V piętrowym budynku z windą. Wystawa okien południowa.

W mieszkaniu klimatyzacja, sterowanie ogrzewaniem za pomocą aplikacji, komfortowe maty grzewcze w łazienkach, system kontaktronów w oknach wyłączających ogrzewanie, hotelowy wyłącznik światła, już nie ma konieczności sprawdzania każdego pomieszczenia, jednym ruchem wyłączają się wszystkie lampy w mieszkaniu. Ponadto system Kontaktronów w oknach wyłączających ogrzewanie w przypadku otwarcia okna, okna trójszybowe. Ogrzewanie i ciepła woda z Szczecińskiej Energetyki Cieplnej (SEC). W budynku nie ma gazu. Niski czynsz.

Przewidywany czas udostępnienia mieszkania grudzień 2025 roku.

Miejsce postojowe w garażu podziemnym w cenie 90.000 zł

OPIS BUDYNKU: budynek wybudowany z bloczków silikatowych.
Cena nieruchomości
671 416 PLN
Cena za m2
17 800 PLN
Opiekun oferty
ID Nieruchomości
434431
Rynek
pierwotny
Powierzchnia
38 m2
Ilośc pokoi
2
Piętro
5
Ilość pięter
5
Rok budowy
2025
Czynsz administracyjny
350 PLN
Rodzaj budynku
Niski blok
Stan budynku
Doskonały
Technologia
Silikat
Droga dojazdowa
Asfalt
Stan nieruchomości
Stan deweloperski
Strony świata
Ogrzewanie
CO miejskie
Typ kuchni
Aneks
Liczba łazienek
1
Powierzchnia łazienki
3,52
Liczba balkonów:
1
Powierzchnia balkonu:
6,2

Opis i cena powyższej oferty nie jest ofertą w rozumieniu Kodeksu Cywilnego i ma jedynie charakter informacyjny, Arka nie ponosi odpowiedzialności za jej kompletność i zgodność ze stanem faktycznym. Dokładamy wszelkich starań aby powyższe informacje były możliwie dokładne, ponieważ jednak pochodzą od osób trzecich, nie zawsze jest możliwa ich weryfikacja.

Kontaktując się z biurem Klient wyraża zgodę na przetwarzanie danych osobowych zgodnie z przepisami ustawy z dnia 29 sierpnia 1997 roku o ochronie danych osobowych / Dz.U.Nr. 133 poz. 883/. Klientowi przysługuje prawo do wglądu do swoich danych osobowych i ich aktualizacji.