Szczecin , Śródmieście

Mieszkanie na sprzedaż

Zachodniopomorskie / Szczecin / Śródmieście
Nr oferty
431201
Powierzchnia
53 m2
Liczba pokoi
2
Piętro
2 / 4

Ładne mieszkanie w dobrej lokalizacji

Planujesz skredytować to mieszkanie – zadzwoń.

Dwupokojowe, rozkładowe mieszkanie z balkonem w śródmieściu Szczecina przy ul. Langiewicza.

Nieruchomość idealna na zakup na własne potrzeby ale także na inwestycję pod wynajem ze względu na bliskość uczelni wyższych i rozkład mieszkania.
W pobliżu liczne sklepy, punkty gastronomiczne, komunikacja miejska.
Ogólnodostępny parking pod budynkiem.

Mieszkanie znajduje się na drugim piętrze niskiego budynku z cegły. Rok budowy 1999.

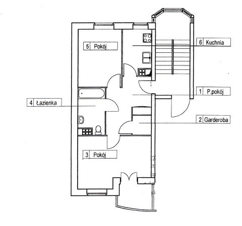
Mieszkanie o powierzchni 52,90 m2, składa się z:
- przestronnego, jasnego salonu o pow. 17,30m2
- ustawnego pokoju o pow. 12,52m2
- przedpokoju z szafą w zabudowie o pow. 6,75m2
- garderoby o pow. 1,85m2
- łazienki z wanną i wc o pow. 5,94m2
- oddzielnej kuchni o pow. 8,54m2

Do mieszkania przynależy piwnica.

Czynsz około 325 zł., zawiera opłaty administracyjne, eksploatacyjne oraz fundusz remontowy. Ogrzewanie oraz podgrzanie wody z pieca gazowego.

Zapraszam na prezentację.


Świadectwo charakterystyki energetycznej - zapotrzebowanie na energię:

EU - użytkową (kWh/m2*rok): 101.20; EK - końcową (kWh/m2*rok): 140.10; EP - nieodnawialną energię pierwotną (kWh/m2*rok): 158.80; EC02 - Wielkość emisji CO2 (t C02/m2*rok): 0.03; UOZE - Udział odnawialnych źródeł energii w zapotrzebowaniu na energię końcową [%]: 0.00;
Cena nieruchomości
499 000 PLN
Cena za m2
9 433 PLN
Opiekun oferty
ID Nieruchomości
431201
Rynek
wtórny
Powierzchnia
53 m2
Ilośc pokoi
2
Piętro
2
Ilość pięter
4
Rok budowy
1999
Czynsz administracyjny
325 PLN
Rodzaj budynku
Niski blok
Stan budynku
Bardzo dobry
Technologia
Cegła
Stan nieruchomości
Bardzo dobry
Ogrzewanie
Gazowe
Typ kuchni
Oddzielna

Opis i cena powyższej oferty nie jest ofertą w rozumieniu Kodeksu Cywilnego i ma jedynie charakter informacyjny, Arka nie ponosi odpowiedzialności za jej kompletność i zgodność ze stanem faktycznym. Dokładamy wszelkich starań aby powyższe informacje były możliwie dokładne, ponieważ jednak pochodzą od osób trzecich, nie zawsze jest możliwa ich weryfikacja.

Kontaktując się z biurem Klient wyraża zgodę na przetwarzanie danych osobowych zgodnie z przepisami ustawy z dnia 29 sierpnia 1997 roku o ochronie danych osobowych / Dz.U.Nr. 133 poz. 883/. Klientowi przysługuje prawo do wglądu do swoich danych osobowych i ich aktualizacji.