Stargard

Dom na sprzedaż

Zachodniopomorskie / Stargardzki / Stargard
Nr oferty
429408
Powierzchnia
132 m2
Liczba pokoi
4
Piętro
- / 1

Nowe domy>> Eleganckie osiedle>> S2_1d

  
Oferta ma charakter informacyjny, o  aktualną dostępność lokali zapytaj naszego doradcę.

TO JUŻ KOLEJNY ETAP ROZBUDOWY OSIEDLA PRZY ULICY NADBRZEŻNEJ!
JUŻ PIERWSI MIESZKAŃCY CIESZĄ SIĘ SWOIM WYMARZONYM DOMEM.

BEZ PODATKU PCC 2%
BEZ PROWIZJI DO BIURA

KUPUJESZ W CENIE DEWELOPERA!

Z naszym biurem masz GWARANCJĘ:
  •  bezpiecznego procesu sprzedaży w oparciu o ust. deweloperską i Fundusz Gwarancyjny
  •  kompleksowej obsługi transakcji na najwyższym poziomie 
  •  bezpłatnej i fachowej usługi w zakresie finansowania zakupu nieruchomości,
  •  profesjonalnego wsparcia naszych licencjonowanych agentów


"Nasza inwestycja to nie tylko dom, to styl życia.
Znajdź swoje miejsce w eleganckim i nowoczesnym otoczeniu,
gdzie komfort mieszkaniowy idzie w parze z solidnością i estetyką."

OFERTA 

Szeregowiec S2
Segment skrajny 1d
Dom o powierzchni użytkowej 132,07 mkw
Działka 178 mkw
Układ pomieszczeń:

PARTER:
wiatrołap
kuchnia 
salon
WC
garaż
pom. techniczne

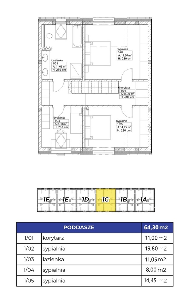
PODDASZE:
korytarz
sypialnia
łazienka
sypialnia 
sypialnia 

NAJWAŻNIEJSZE ATUTY              
- ogrzewanie podłogowe w całym budynku,
- instalacje elektryczna i wodno-kanalizacyjna zakończone są wysokiej jakości materiałami,
- okna trzyszybowe,
- brama garażowa sterowana pilotem,
- dojście do budynku i wjazd do garażu wykonane są z kostki brukowej
- ogród został otoczony płotem systemowym
- woda oraz ogrzewanie z sieci miejskiej
- kanalizacja miejska

LOKALIZACJA                               
Kameralne osiedle w zabudowie wielorodzinnych bloków oraz domów szeregowych
znajdujące się na granicy Starego Miasta a ścisłym centrum Stargardu. 


W POBLIŻU INWESTYCJI
  •  PARK ZAMKOWY - 370 m
  •  PRZYSTANEK KOMUNIKACJI MIEJSKIEJ - 650 m
  •  PARK BOLESŁAWA CHROBREGO - 740 m
  •  SZKOŁA PODSTAWOWA NR 5 - 800 m
  •  PRZEDSZKOLE MIEJSKIE NR 1 - 860 m
  •  STARE MIASTO - 1000 m
  •  SZKOŁA PODSTAWOWA NR 3 - 1040 m


 Skontaktuj się z nami już dziś,
aby dowiedzieć się więcej o dostępności i warunkach zakupu.








Cena nieruchomości
710 537 PLN
Cena za m2
5 380 PLN
Opiekun oferty
ID Nieruchomości
429408
Rynek
pierwotny
Powierzchnia
132 m2
Powierzchnia działki
178 m2
Ilośc pokoi
4
Ilość pięter
1
Rok budowy
2025
Stan budynku
Stan deweloperski
Technologia
Bloczki
Typ domu
Szeregowy
Droga dojazdowa
Asfalt
Kształt działki
Prostokąt
Stan nieruchomości
Stan deweloperski
Typ kuchni
Otwarta
Liczba łazienek
2
Liczba oddzielnych toalet:
1

Opis i cena powyższej oferty nie jest ofertą w rozumieniu Kodeksu Cywilnego i ma jedynie charakter informacyjny, Arka nie ponosi odpowiedzialności za jej kompletność i zgodność ze stanem faktycznym. Dokładamy wszelkich starań aby powyższe informacje były możliwie dokładne, ponieważ jednak pochodzą od osób trzecich, nie zawsze jest możliwa ich weryfikacja.

Kontaktując się z biurem Klient wyraża zgodę na przetwarzanie danych osobowych zgodnie z przepisami ustawy z dnia 29 sierpnia 1997 roku o ochronie danych osobowych / Dz.U.Nr. 133 poz. 883/. Klientowi przysługuje prawo do wglądu do swoich danych osobowych i ich aktualizacji.