Goleniów

Mieszkanie na sprzedaż

Zachodniopomorskie / Goleniowski / Goleniów
Nr oferty
426611
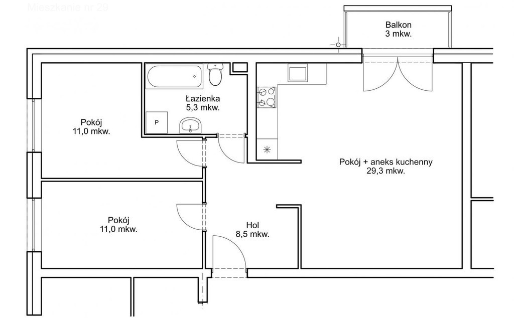
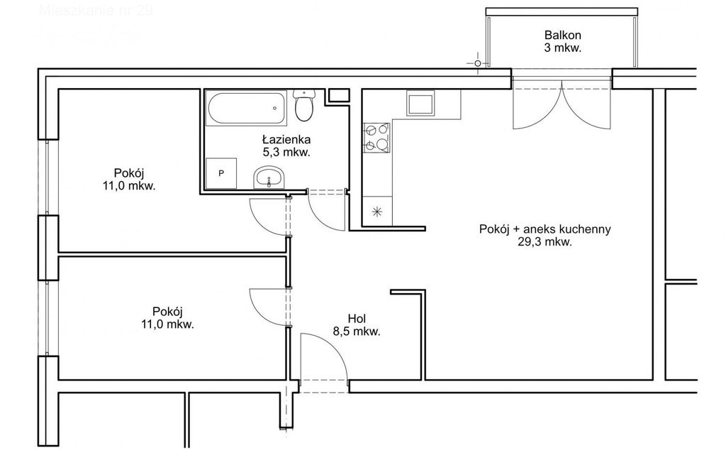
Powierzchnia
65 m2
Liczba pokoi
3
Piętro
2 / 2

Apartament 3-pokojowy w nowej inwestycji

Na sprzedaż 3-pokojowy apartament o powierzchni 65,1m2 w nowej inwestycji w Goleniowie.
Przedmiotowa nieruchomość znajduje się w jednoklatkowej w niskiej dwupiętrowej zabudowie apartamentowej z podziemnym parkingiem wielostanowiskowym oraz cichobieżną windą.
Na powierzchnie mieszkania słada się:
- salon z wyjściem na balkon
- aneks kuchenny
- łazienka
W mieszkaniu zamontowane zostaną okna PCV 3-szybowe oraz drzwi antywłamaniowe PORTA.
Instalacja centralnego ogrzewania: miejskie SEC, grzejniki panelowe z głowicami termostatycznymi.
W inwestycji dostępne są zarówno kawalerki, jak i większe lokale, idealne dla rodzin z dziećmi.
Po przeniesieniu praw własności istnieje możliwość kompleksowego wykończenia zakupionych mieszkań. Wszystko według indywidualnych uzgodnień.
Na terenie osiedla będzie także funkcjonowała firma dedykowana do kompleksowej obsługi gotowych mieszkań pod względem inwestycyjnym.
Do jej zadań należeć będzie nie tylko wyszukanie najrentowniejszej oferty wynajmu oraz dbanie o jego ciągłość, lecz także regularny dogląd inwestycji zarówno pod względem finansowym, jak i fizycznym.
Zapraszamy do kontaktu.
Cena nieruchomości
490 000 PLN
Cena za m2
7 527 PLN
Opiekun oferty
ID Nieruchomości
426611
Rynek
pierwotny
Powierzchnia
65 m2
Ilośc pokoi
3
Piętro
2
Ilość pięter
2
Rok budowy
2024
Czynsz administracyjny
0 PLN
Rodzaj budynku
Budynek apartamentowy
Stan budynku
Doskonały
Technologia
Silikat
Stan nieruchomości
Stan deweloperski
Ogrzewanie
CO miejskie
Typ kuchni
Aneks
Liczba łazienek
1
Liczba balkonów:
1

Opis i cena powyższej oferty nie jest ofertą w rozumieniu Kodeksu Cywilnego i ma jedynie charakter informacyjny, Arka nie ponosi odpowiedzialności za jej kompletność i zgodność ze stanem faktycznym. Dokładamy wszelkich starań aby powyższe informacje były możliwie dokładne, ponieważ jednak pochodzą od osób trzecich, nie zawsze jest możliwa ich weryfikacja.

Kontaktując się z biurem Klient wyraża zgodę na przetwarzanie danych osobowych zgodnie z przepisami ustawy z dnia 29 sierpnia 1997 roku o ochronie danych osobowych / Dz.U.Nr. 133 poz. 883/. Klientowi przysługuje prawo do wglądu do swoich danych osobowych i ich aktualizacji.