Goleniów

Dom na sprzedaż

Zachodniopomorskie / Goleniowski / Goleniów
Nr oferty
414184
Powierzchnia
128 m2
Liczba pokoi
5
Piętro
- / 1

Goleniów Dom w zabudowie bliźniaczej

Zapraszamy do zapoznania się z ofertą sprzedaży lokalu mieszkalnego w zabudowie bliźniaczej z użytkowym poddaszem.
Nieruchomość zlokalizowana przy ul. Rybackiej w Goleniowie - 2,5 km od centrum miasta.

Przedmiotem sprzedaży jest segment budynku w stanie deweloperskim, wybudowany w technologii tradycyjnej według projektu "DOM W CYKLAMENACH 5" z niewielkimi modyfikacjami. Charakteryzuje się prostą, zwartą bryłą. Idealny dla rodziny 2+2 lub 2+3.
Położony na działce o pow. 500 m2, z pośrednim dostępem do drogi publicznej poprzez utwardzoną drogę wewnętrzną.

Lokal mieszkalny dwukondygnacyjny, o łącznej pow. użytkowej 127,5 m2 (w tym pow. mieszkalna 102,10 m2 + garaż 25,40 m2), oferowany jest w dwóch wersjach - Z CZTEREMA LUB Z PIĘCIOMA POKOJAMI.

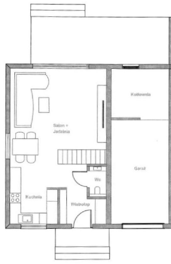
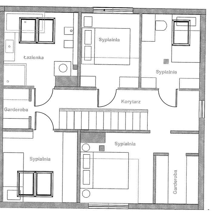
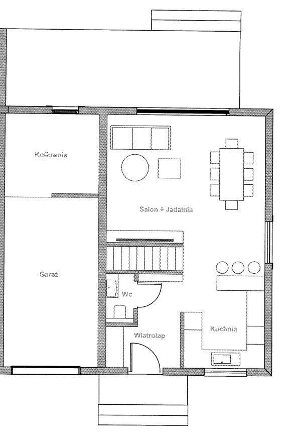
Składa się z następujących pomieszczeń:
PARTER (pow. użytk. z garażem 66,42 m2):
- wiatrołap 5,87 m²
- salon 26,13 m²
- kuchnia 7,46 m²
- WC 1,56 m²
- garaż 25,40 m²

PODDASZE UŻYTKOWE (pow. użytkowa 61,08 m² - pow. całkowita 66,38 m²):
- sypialnia 1 - 7,78 m² (9,34 m²),
- sypialnia 2 z garderobą - 14,54 m², (15,6 m²),
- sypialnia 3 - 6,98 m²(7,46 m² ),
- sypialnia 4 - 6,90 m²(7,40 m²),
- łazienka 7,44 m² (9,11 m²),
- przedpokój 17,46 m²

KONSTRUKCJA:
- Ściany konstrukcyjne - bloczki beton komórkowy Solbet 24 cm,
- Strop - płyty żelbetowe, wielokanałowe typu Żerań,
- Schody wewnętrzne - jednobiegowe, żelbetowe, prefabrykowane,
- Ocieplenie ścian zewnętrznych - styropian 18 cm,
- Pokrycie dachu - blacha na rąbek,

STANDARD WYKOŃCZENIA
- drzwi wejściowe Wiśniowski,
- brama garażowa Wiśniowski segmentowa wraz z napędem,
- okna PCV 3-szybowe Wiśniowski,
- instalacja - elektryczna, wodna, kanalizacyjna, RTV,
- system ogrzewania podłogowego w całym domu,
- ocieplenie dachu - wełna mineralna 20 cm lub piana PUR,
- podjazd i ścieżka do domu - kostka betonowa,
- tynk elewacyjny silikatowy, puc,
- taras wykonany z kostki brukowej,

Media - woda z sieci miejskiej, szczelny zbiornik bezodpływowy, prąd.

Nowoczesna pompa ciepła Firmy Bosch. Instalacja z możliwością podłączenia paneli fotowoltaicznych oraz rekuperacji.

DODATKOWE MOŻLIWOŚCI:
- na odpowiednim etapie budowy istnieje możliwość modyfikacji ścianek wewnętrznych - działowych,
- wykończenie nieruchomości POD KLUCZ - cena do indywidualnego ustalenia z Developerem,
- indywidualny harmonogram płatniczy - do uzgodnienia z Developerem,

Cena zawiera podatek VAT - 8%. Kupujący zwolniony z podatku 2% od czynności cywilnoprawnych.

ZAPRASZAMY NA PREZENTACJE i DO SKŁADANIA OFERT ZAKUPU !!!
Cena nieruchomości
659 000 PLN
Cena za m2
5 169 PLN
Opiekun oferty
ID Nieruchomości
414184
Rynek
pierwotny
Powierzchnia
128 m2
Powierzchnia działki
500 m2
Ilośc pokoi
5
Ilość pięter
1
Rok budowy
2023
Czynsz administracyjny
PLN
Stan budynku
Doskonały
Technologia
Ytong
Typ domu
Pół bliźniaka
Droga dojazdowa
Polna droga
Kształt działki
Prostokąt
Szrokość
14.5 m2
Długość
34.5 m2
Stan nieruchomości
Stan deweloperski
Ogrzewanie
Pompa ciepła
Typ kuchni
Otwarta
Powierzchnia kuchni
7,46
Liczba łazienek
1
Powierzchnia łazienki
7,44
Liczba oddzielnych toalet:
1

Opis i cena powyższej oferty nie jest ofertą w rozumieniu Kodeksu Cywilnego i ma jedynie charakter informacyjny, Arka nie ponosi odpowiedzialności za jej kompletność i zgodność ze stanem faktycznym. Dokładamy wszelkich starań aby powyższe informacje były możliwie dokładne, ponieważ jednak pochodzą od osób trzecich, nie zawsze jest możliwa ich weryfikacja.

Kontaktując się z biurem Klient wyraża zgodę na przetwarzanie danych osobowych zgodnie z przepisami ustawy z dnia 29 sierpnia 1997 roku o ochronie danych osobowych / Dz.U.Nr. 133 poz. 883/. Klientowi przysługuje prawo do wglądu do swoich danych osobowych i ich aktualizacji.