Kołbaskowo

Działka na sprzedaż

Zachodniopomorskie / Policki / Kołbaskowo
Nr oferty
412686
Powierzchnia
8 566 m2

Top Lokalizacja przy Amazon A6, pozw na budowe

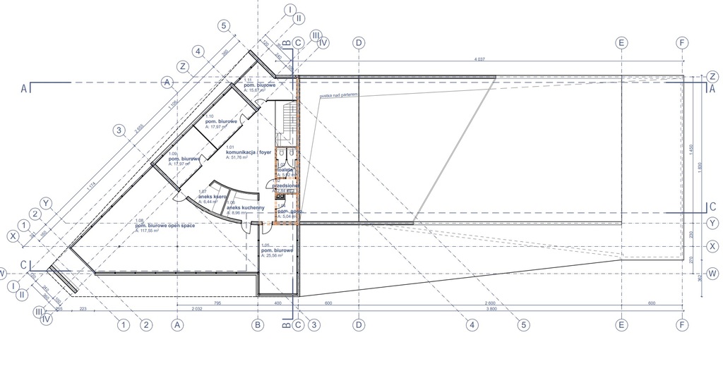
Działka z pozwoleniem na budowę budynku biurowo-mieszkalnego.

Na sprzedaż działka z projektem i pozwoleniem na budowę - w bardzo dobrej lokalizacji przy centrum logistycznym Amazon Kołbaskowo.
W okolicy stacja paliw Orlen i Lotos.
Powierzchnia działki to ok. 8566m2. Bezpośrednio przy Autostradzie A6 łączącej Berlin z Gdańskiem oraz drogą krajową nr 13, zjazd/wjazd - prawo i lewo skrętny z drogi krajowej numer 13.
Działka uzbrojona w media:
- prąd (skrzynka ZK na działce)
- gaz, woda i kanalizacja bezpośrednio w drodze ok. 20-30m.
Działka jest bardzo widoczna , latem przejeżdża ok. 20 tys. pojazdów na dobę (wyliczenia GDDKiA).
Działka posiada projekt na ok. 530m2 powierzchni biurowej i mieszkalnej (3 kondygnacje) i możliwość w kolejnym etapie rozbudowy o magazyn o pow. 700m2 ( po przeniesieniu zjazdu, związanego z budową nowego węzła obwodnicy zachodniej Szczecina).
Więcej informacji udzielimy telefonicznie.
Cena nieruchomości
3 000 000 PLN
Cena za m2
350 PLN
Opiekun oferty
ID Nieruchomości
412686
Rynek
wtórny
Powierzchnia działki
8 566 m2
Przeznaczenie działki
Inwestycyjna
Droga dojazdowa
Asfalt
Rodzaj kanalizacji
Miejska
Kształt działki
Nieregularny
Szrokość
100 m2
Długość
100 m2
Plan miejscowy
Brak planu miejscowgo

Opis i cena powyższej oferty nie jest ofertą w rozumieniu Kodeksu Cywilnego i ma jedynie charakter informacyjny, Arka nie ponosi odpowiedzialności za jej kompletność i zgodność ze stanem faktycznym. Dokładamy wszelkich starań aby powyższe informacje były możliwie dokładne, ponieważ jednak pochodzą od osób trzecich, nie zawsze jest możliwa ich weryfikacja.

Kontaktując się z biurem Klient wyraża zgodę na przetwarzanie danych osobowych zgodnie z przepisami ustawy z dnia 29 sierpnia 1997 roku o ochronie danych osobowych / Dz.U.Nr. 133 poz. 883/. Klientowi przysługuje prawo do wglądu do swoich danych osobowych i ich aktualizacji.