Goleniów

Mieszkanie na sprzedaż

Zachodniopomorskie / Goleniowski / Goleniów
Nr oferty
408753
Powierzchnia
65 m2
Liczba pokoi
3
Piętro
0 / 2

Mieszkanie 3-pokojowe w centrum miasta

Zapraszamy do zapoznania się z ofertą sprzedaży mieszkań osiedlu bloków wielorodzinnych przy ul. Chopina w Goleniowie.

Cena zawiera obowiązujący podatek VAT, kupujący nie płaci 2% PCC u Notariusza.

Inwestycja polega na budowie trzech budynków jednoklatkowych w niskiej dwupiętrowej zabudowie z podziemnym parkingiem wielostanowiskowym oraz cichobieżną windą z poziomu parkingu.

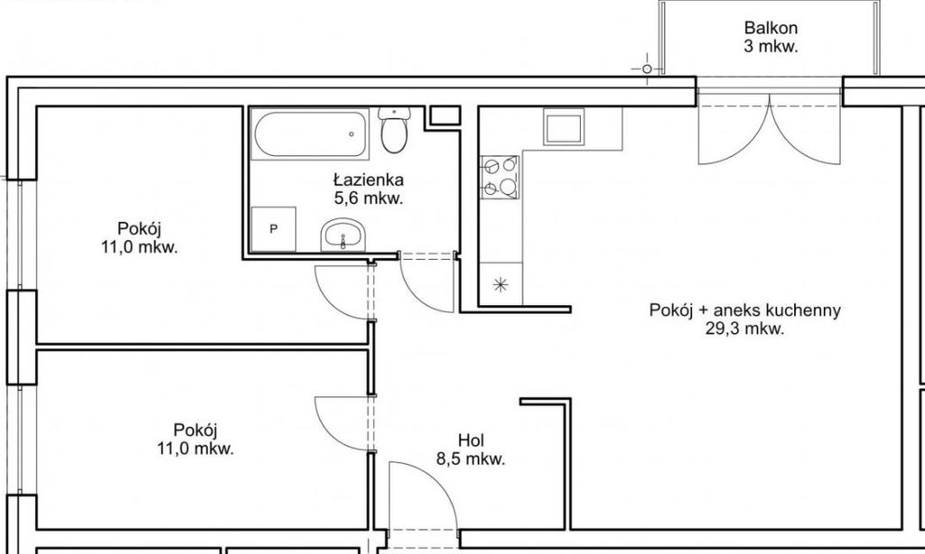
Prezentowany Państwu lokal mieszkalny o pow. użytkowej ok. 65,4 m2 znajduje się na parterze budynku nr 3.

Składa się z następujących pomieszczeń:
- salon z aneksem kuchennym,
- pokój,
- pokój,
- łazienka,
- przedpokój,

Mieszkanie posiada balkon o powierzchni 3 m2.

STANDARD - stan developerski:
- podłogi - posadzka cementowa zatarta na gładko z izolacją termiczną 5 cm, dodatkowo docieplenie stropu nad garażem wełną gr. 15 cm, na
piętrach izolacją akustyczną – 5 cm,
- ściany - tynk wewnętrzny gipsowy maszynowe III kategorii na ścianach silikatowych i stropie żelbetowym,
- okna - profil PCV, 5-komorowa, zestaw 3-szybowy,
- drzwi wejściowe do mieszkania - antywłamaniowe PORTA,

INSTALACJE:
- elektryczna - pełne okablowanie budynku i podstawowy osprzęt elektroinstalacyjny,
- RTV - okablowanie mieszkania do telewizji naziemnej oraz przygotowanie instalacji do telewizji kablowej,
- internetowa wewnętrzna,
- wodno - kanalizacyjna - wyprowadzenia instalacyjne bez białego montażu, zaworów i armatury sanitarnej,
- odgromowa,
- domofonowa,
- centralnego ogrzewania - miejskie PEC, grzejniki panelowe z głowicami termostatycznymi,

WYKOŃCZENIE BUDYNKU:
- strop żelbetowy,
- ściany zewnętrzne murowane, z bloków silikatowych 24 cm,
- ściany działowe: murowane z bloków silikatowych 8 cm,
- schody wewnętrzne żelbetowe,
- posadzka klatek i biegów schodowych – granitowa,
- brama garażowa segmentowa, ażurowa w kolorze szarym z napędem,
- pokrycie dachu - dach drewniany kryty papą, strop docieplony wełną mineralną gr. 25 cm,
- elewacja - ocieplenie styropianem 15 cm, tynk mineralny malowany farbą silikonową, system „STO”;
na fragmentach elewacji przyziemia płytki klinkierowe,

Dodatkowo dokupić można miejsce parkingowe w garażu podziemnym w cenie 50.000,00 zł,

ZAKUP MIEJSCA POSTOJOWEGO NIE JEST OBOWIĄZKOWY.

Jeżeli masz ochotę zamieszkać w nowo wybudowanym komfortowym mieszkaniu w centrum miasta, a jednocześnie blisko miejskiego parku to właśnie takie znalazłeś/łaś !!

Zapraszamy do biura sprzedaży w Goleniowie w celu uzyskania szczegółowych informacji o ofercie.

BEZPŁATNIE POMAGAMY W UZYSKANIU KREDYTU

Cena nieruchomości
490 000 PLN
Cena za m2
7 492 PLN
Opiekun oferty
ID Nieruchomości
408753
Rynek
pierwotny
Powierzchnia
65 m2
Ilośc pokoi
3
Ilość pięter
2
Rok budowy
2024
Czynsz administracyjny
0 PLN
Rodzaj budynku
Niski blok
Stan budynku
Stan deweloperski
Technologia
Bloczki
Droga dojazdowa
Asfalt
Stan nieruchomości
Stan deweloperski
Ogrzewanie
CO miejskie
Typ kuchni
Otwarta
Liczba łazienek
1
Liczba balkonów:
1
Powierzchnia balkonu:
3

Opis i cena powyższej oferty nie jest ofertą w rozumieniu Kodeksu Cywilnego i ma jedynie charakter informacyjny, Arka nie ponosi odpowiedzialności za jej kompletność i zgodność ze stanem faktycznym. Dokładamy wszelkich starań aby powyższe informacje były możliwie dokładne, ponieważ jednak pochodzą od osób trzecich, nie zawsze jest możliwa ich weryfikacja.

Kontaktując się z biurem Klient wyraża zgodę na przetwarzanie danych osobowych zgodnie z przepisami ustawy z dnia 29 sierpnia 1997 roku o ochronie danych osobowych / Dz.U.Nr. 133 poz. 883/. Klientowi przysługuje prawo do wglądu do swoich danych osobowych i ich aktualizacji.