Szczecin , Gumieńce

Dom na sprzedaż

Zachodniopomorskie / Szczecin / Gumieńce
Nr oferty
438225
Powierzchnia
250 m2
Liczba pokoi
4
Piętro
- / 1

Gumieńce KOMFORTOWY dom wolno stojący 1,75 mln

Do sprzedaży wolno stojący dom, z 2000 roku, bardzo wygodny i funkcjonalny. W wyjątkowej kameralnej lokalizacji na Gumieńcach, przy bardzo spokojnej ulicy, wśród bogatej zieleni i w otoczeniu innych domów jednorodzinnych oraz zielonych terenów rekreacyjnych. Okolice ulic Huzarów, Niepołomickiej, Tynieckiej.
Dom z dobrym dostępem do komunikacji miejskiej. Idealny dla wielopokoleniowej rodziny.

Priorytetem w tworzeniu domu był rodzinny klimat co widać w przemyślanej przyjaznej aranżacji domu. Dzięki dużym oknom na parterze wnętrza pełne są naturalnego światłą podkreślając otwarty charakter. Dom został starannie zaplanowany z myślą o rodzinie tworząc idealne warunki do odpoczynku i do pracy.

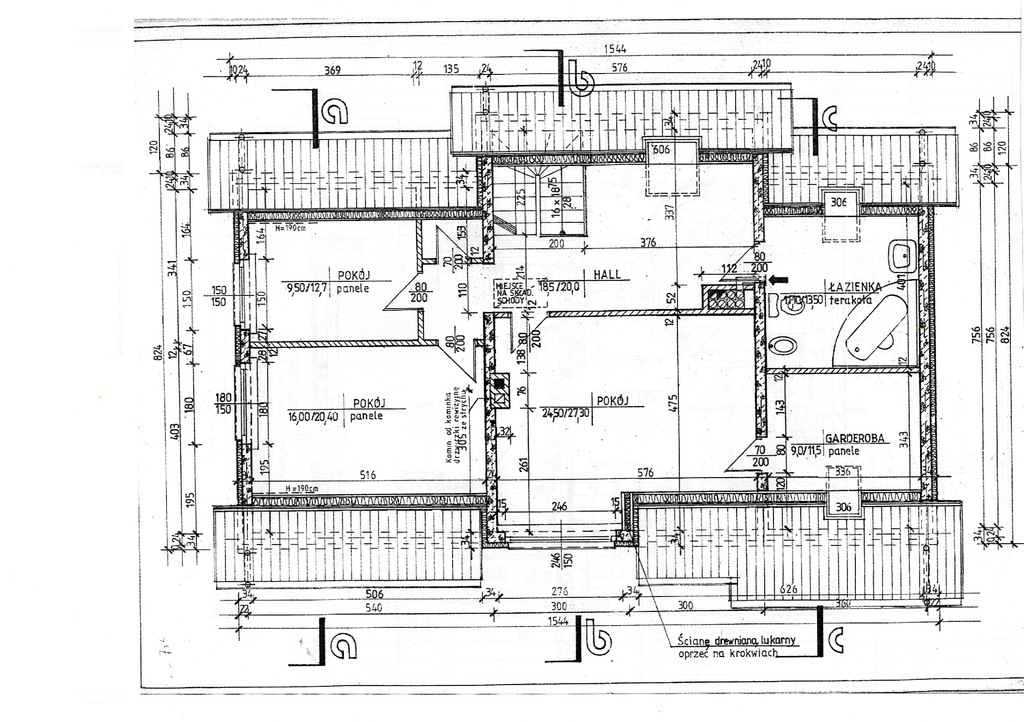
PARTER (93,5 m²):
* Hall (10,5 m²) - otwarty na salon, z wejściami do: kuchni, toalety dla gości, pomieszczeń technicznych oraz na poddasze.
* W salonie (32 m²) zwraca uwagę kominek i wyjście podwójnymi drzwiami na taras (16 m²) otoczony zielenią stanowiącym idealne miejsce na chwile wytchnienia i dalej do ogrodu z drzewami i krzewami. Salon otwarty na hall.
* Sercem domu jest przestronna, jasna kuchnia (13,5 m²) - o kształcie kwadratu, z oknem, której delikatne oświetlenie tworzą przytulną atmosferę, sprawia, że gotowanie staje się prawdziwą przyjemnością sprzyja też rodzinnym spotkaniom. Praktyczna zabudowa meblowa z urządzeniami AGD: lodówka, zmywarka 60 cm Whirpool, kuchenka elektryczna z płytą ceramiczną i piekarnikiem Amica, okap), stół z krzesłami.
* Toaleta dla gości (2,6 m²) - WC z umywalką.


PIĘTRO (88 m²):
* Sypialnia 24,5 m² (po podłodze 27,3 m²)) z udogodnieniem w postaci pojemnej garderoby z oknem,
* Garderoba 9 m² (po podłodze 11,5 m²)
* Pokój 16 m² (po podłodze 20,4 m²)
* Pokój 9,5 m² (po podłodze 12,7 m²)
* Hall wypoczynkowy 18,5 m² (po podłodze 20 m²) z oknem połaciowym, możliwość wydzielenia w nim części wspólnej komputerowej
*Łazienka o powierzchni 11,1 m² (po podłodze 13,5 m²) z wanną, umywalką, WC i bidetem, z możliwość zainstalowania kabiny prysznicowej, okno połaciowe.
* Mała garderoba ze skosami bez okna.
Na piętrze w sypialni i pokojach okna są pełnowymiarowe oraz połaciowe.

PODDASZE:
Wejście z hallu na piętrze opuszczanymi z góry schodami.
Trzy pomieszczenia do przechowywania z oknami połaciowymi.
Ocieplony dach oraz strop nad I piętrem ocieplony.
Wysokość strychu w najwyższym punkcie 2,65 m.

Pomieszczenia techniczne znajdują się na parterze, oddzielone od części mieszkalnej:
* Pralnia (10,5 m²) wanna i pralka, piec gazowy, kondensacyjny Buderus (wymieniony 3 lata temu) oraz zbiornik na ciepłą wodę (118 litrów)
* Spiżarnia (5,2 m²) z dodatkową lodówką
* Garaż (19,2 m²) na jeden samochód, brama uchylna sterowana pilotem.
Wejście do domu przez wiatrołap (2,4 m²), na podłodze terakota.

OPIS BUDYNKU:

Powierzchnia użytkowa 189,5 m2 (po podłodze więcej), działka 492 m2.
W otoczeniu domy jednorodzinne i szeregowe.
Ogród z nasadzeniami ozdobnymi.

Wejście do budynku i wjazd do garażu z poziomu zerowego. Dom niepodpiwniczony.
Powierzchnia użytkowa 189,5 m², powierzchnia całkowita 250 m².
Dom położony na działce o powierzchni 492 m².
Parter i piętro z niewielkimi skosami (wysoka ścianka kolankowa), poddasze nieużytkowe, niskie, bez podpiwniczenia.

Budynek wybudowany z bloczków Silikatowych charakteryzujących się dobrymi właściwościami izolacyjnymi, dach stromy z blachodachówką, ocieplony. Ściany kolankowe na I piętrze o wysokości 1,4 m.
W łazience, i toaletach glazura i terakota.
W pomieszczeniach technicznych terakota.
Okna nowoczesne drewniane VELUX, mahoniowe dwuszybowe, na piętrze częściowo połaciowe, parapety drewniane.
Ogrzewanie gazowe, drzwi wejściowe antywłamaniowe, rolety antywłamaniowe na całym parterze sterowane pilotem, alarm, monitoring.
Garaż wbudowany, z miejscem na 1 samochód i jednoślady. Drzwi do garażu uchylne sterowane pilotem. Dodatkowo jedno miejsce do parkowania na posesji przed garażem.
Działka ogrodzona z bramą sterowaną pilotem.

For sale is a detached house, built in 2000, very comfortable and functional. It is situated in a unique, intimate location in Gumieńce, on a very quiet street, surrounded by lush greenery and other single-family homes and green recreational areas. The area is located on Huzarów, Niepołomicka, and Tyniecka streets. The house has good access to public transportation. It is ideal for a multi-generational family. A family atmosphere was a priority in creating the house, which is evident in the thoughtful, friendly layout. Thanks to large windows on the ground floor, the interiors are full of natural light, emphasizing the open character of the house. The house was carefully planned with the family in mind, creating ideal conditions for relaxation and work. GROUND FLOOR (93.5 m²): * Hall (10.5 m²) - open to the living room, with entrances to the kitchen, guest toilet, technical rooms, and the attic. * The living room (32 m²) features a fireplace and double doors leading to a terrace (16 m²) surrounded by greenery, an ideal place for relaxation, and beyond to a garden with trees and shrubs. The living room opens to the hall. * The heart of the house is the spacious, bright kitchen (13.5 m²) - square in shape, with a window, whose soft lighting creates a cozy atmosphere, making cooking a real pleasure and conducive to family gatherings. Practical built-in furniture with appliances: refrigerator, 60 cm Whirlpool dishwasher, electric stove with ceramic hob and Amica oven, extractor hood), table and chairs. * Guest toilet (2.6 m²) - toilet with sink. FIRST FLOOR (88 m²): * Bedroom 24.5 m² (27.3 m² floor area)) with the convenience of a spacious wardrobe with a window, * Wardrobe 9 m² (11.5 m² floor area) * Room 16 m² (20.4 m² floor area) * Room 9.5 m² (12.7 m² floor area) * Lounge 18.5 m² (20 m² floor area) with a roof window, possibility of creating a common computer area * Bathroom 11.1 m² (13.5 m² floor area) with a bathtub, washbasin, toilet and bidet, with the possibility of installing a shower cabin, roof window. * Small wardrobe with sloping ceilings without a window. On the first floor, the bedrooms and rooms have full-size and roof windows. ATTIC: Access from the first floor hall via a drop-down staircase. Three storage rooms with roof windows. The roof is insulated, and the ceiling above the first floor is insulated. The attic height at its highest point is 2.65 m. The technical rooms are located on the ground floor, separate from the living area: * Laundry room (10.5 m²) with bathtub and washing machine, Buderus gas condensing boiler (replaced 3 years ago), and hot water tank (118 liters) * Pantry (5.2 m²) with an additional refrigerator * Garage (19.2 m²) for one car, with a remote-controlled up-and-over gate. Entrance to the house is through a vestibule (2.4 m²), with terracotta floors. BUILDING DESCRIPTION: Usable area 189.5 m² (more on the floor), plot 492 m². Surrounded by single-family and terraced houses. Garden with ornamental plantings. The entrance to the building and garage are from the ground floor. The house has no basement. The usable area is 189.5 m², and the total area is 250 m². The house is situated on a 492 m² plot. The ground and first floors have slight slopes (high knee wall), and the attic is unusable and low, without a basement. The building is constructed of silicate blocks with good insulating properties, and the roof is steeply pitched with metal tiles, insulated. The knee walls on the first floor are 1.4 m high. The bathroom and toilets are tiled with tiles and terracotta. The technical rooms are tiled with terracotta. Modern wooden VELUX windows, mahogany double-glazed, partially roof-hung windows on the first floor, and wooden window sills. Gas heating, burglar-proof entrance doors, remote-controlled burglar-proof roller shutters throughout the ground floor, alarm system, and CCTV. Built-in garage, with space for 1 car and two-wheelers. Hinged garage door controlled by remote control. Additionally, one parking space on the property in front of the garage. The plot is fenced with a remote-controlled gate. For sale: a detached house, built in 2000, very comfortable and functional. It's located in a quiet street in Gumieńce, surrounded by lush greenery and other single-family homes and recreational areas. Located near Huzarów, Niepołomicka, and Tyniecka streets, the house offers easy access to public transportation. Ideal for a multi-generational family. A family atmosphere was a priority in creating the house, which is evident in the carefully thought-out, welcoming layout. Thanks to large windows on the ground floor, the interiors are filled with natural light, emphasizing the open character. The house was carefully planned with the family in mind, creating ideal conditions for relaxation and work. Ground floor (93.5 m²): * Hall (10.5 m²) - open to the living room, with entrances to the kitchen, guest toilet, technical rooms, and attic. * The living room (32 m²) features a fireplace and double doors leading to a 16 m² terrace surrounded by greenery, an ideal place for relaxation, and further on to the garden with trees an
Cena nieruchomości
1 750 000 PLN
Cena za m2
7 000 PLN
Opiekun oferty
ID Nieruchomości
438225
Rynek
wtórny
Powierzchnia
250 m2
Powierzchnia działki
492 m2
Ilośc pokoi
4
Ilość pięter
1
Rok budowy
2000
Czynsz administracyjny
PLN
Stan budynku
Bardzo dobry
Technologia
Silikat
Typ domu
Wolnostojący
Droga dojazdowa
Asfalt
Kształt działki
Prostokąt
Stan nieruchomości
Bardzo dobry
Strony świata
Ogrzewanie
Gazowe
Typ kuchni
Oddzielna
Wyposażenie kuchni
Kuchenka elektryczna, Lodówka, Zmywarka, Płyta grzewcza elektryczna, Meble w zabudowie kuchenne, Okap, Piekarnik, Zlewozmywak,
Powierzchnia kuchni
13,5
Liczba łazienek
1
Powierzchnia łazienki
11,1
Liczba oddzielnych toalet:
1
Liczba tarasów:
1
Powierzchnia tarasu:
16

Opis i cena powyższej oferty nie jest ofertą w rozumieniu Kodeksu Cywilnego i ma jedynie charakter informacyjny, Arka nie ponosi odpowiedzialności za jej kompletność i zgodność ze stanem faktycznym. Dokładamy wszelkich starań aby powyższe informacje były możliwie dokładne, ponieważ jednak pochodzą od osób trzecich, nie zawsze jest możliwa ich weryfikacja.

Kontaktując się z biurem Klient wyraża zgodę na przetwarzanie danych osobowych zgodnie z przepisami ustawy z dnia 29 sierpnia 1997 roku o ochronie danych osobowych / Dz.U.Nr. 133 poz. 883/. Klientowi przysługuje prawo do wglądu do swoich danych osobowych i ich aktualizacji.