Stargard

Lokal na sprzedaż

Zachodniopomorskie / Stargardzki / Stargard
Nr oferty
397939
Powierzchnia
80 m2
Liczba pokoi
3
Piętro
0 / 1

Lokal usługowo-handlowy w Centrum Stargardu!

Lokal użytkowy o pow. 79,84m2 usytuowany na parterze niskiego budynku z 2012 roku w samym Centrum Stargardu.
Idealny do prowadzenia usług medycznych, biurowych, salonu kosmetycznego lub fryzjerskiego.

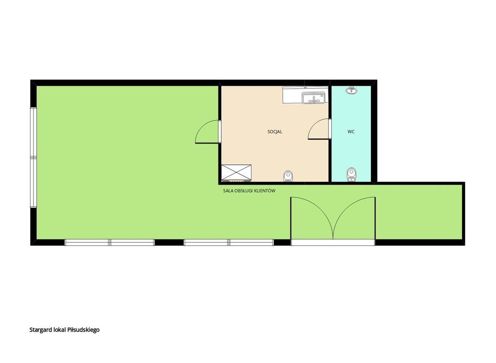
Całość lokalu to 3 pomieszczenia, wśród których wyróżniamy:
- dużą salę sprzedaży w formie "Open Space"
- toaletę
- pomieszczenie stanowiące zaplecze socjalne (kuchnia dla personelu, szatnia)


Wykończenie lokalu:
- podłogi-terakota,
- ściany gładkie malowane,
- stolarka okienna - PCV - duże witryny wystawowe jednocześnie super doświetlające lokal.
- kontrola dostępu do całości poprzez działający, zintegrowany z firmą ochroniarską system alarmowy
- lokal wyposażony w energię elektryczną, kanalizację, ogrzewanie, ciepłą i zimną wodę z sieci miejskiej, dodatkowo podłączona energia elektryczna 380 V.

Czynsz administracyjny płatny do wspólnoty liczony od lokalu użytkowego wynosi ok. 500 zł, wlicza się w niego zaliczki na ciepłą i zimną wodę, ogrzewanie, fundusz remontowy, wywóz śmieci, utrzymanie czystości, administrowanie budynkiem.
Lokal z możliwością wykorzystania jako biurowy, sala Fitness, handlowo-usługowy, usługi medyczne, terapeutyczne, szkoła nauki jazdy itp.

Jeżeli jesteś zainteresowany zapraszam do kontaktu- odpowiem na wszystkie pytania. Zapraszam do osobistej weryfikacji oferty podczas prezentacji.
Cena nieruchomości
395 000 PLN
Cena za m2
4 947 PLN
Opiekun oferty
ID Nieruchomości
397939
Rynek
wtórny
Powierzchnia
80 m2
Ilośc pokoi
3
Ilość pięter
1
Rok budowy
2012
Czynsz administracyjny
500 PLN
Rodzaj budynku
Budynek mieszkalno-biurowy
Stan budynku
Bardzo dobry
Technologia
Cegła
Droga dojazdowa
Asfalt
Przeznaczenie
Handlowo / usługowe

Opis i cena powyższej oferty nie jest ofertą w rozumieniu Kodeksu Cywilnego i ma jedynie charakter informacyjny, Arka nie ponosi odpowiedzialności za jej kompletność i zgodność ze stanem faktycznym. Dokładamy wszelkich starań aby powyższe informacje były możliwie dokładne, ponieważ jednak pochodzą od osób trzecich, nie zawsze jest możliwa ich weryfikacja.

Kontaktując się z biurem Klient wyraża zgodę na przetwarzanie danych osobowych zgodnie z przepisami ustawy z dnia 29 sierpnia 1997 roku o ochronie danych osobowych / Dz.U.Nr. 133 poz. 883/. Klientowi przysługuje prawo do wglądu do swoich danych osobowych i ich aktualizacji.